Мы используем куки-файлы. Соглашение об использовании
Площадь423 м²
Этаж1 из 5
ПомещениеСвободно
КлассB+
Отчёт о привлекательности объектаУзнайте, насколько помещение и район подходят для вашего бизнеса
Что входит в отчёт
  • Охват населения
  • Пешеходный трафик
  • Автомобильный трафик
  • Средний бюджет семьи по району
  • Арендные ставки рядом
  • Точки притяжения
  • Конкуренты в радиусе 1 км
  • Рекомендации по выбору места для бизнеса
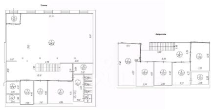
РАБОТАЕМ С АГЕНТАМИ И ПЛАТИМ! РЕНТАВИК— участник ассоциации агентств КОКОН. Деловой квартал Рябовская мануфактура состоит из нескольких строений общей площадью 25 100 м2. Находится в непосредственной близости от станции метро. В комплексе предусмотрена наземная парковка на 165 машино-мест. Налоговая: 26. Лифты: Нет. Вентиляция: Приточно-вытяжная. Кондиционирование: Сплит-системы. Безопасность: Круглосуточный доступ, Круглосуточная охрана, Система пожаротушений, Видеонаблюдение. Парковка: Наземная. Описание помещения: Двухуровневое помещение. Выполнена качественная отделка в стиле ЛОФТ. В блоке есть своя кухня и санузел. Планировка: смешанная. Офисная отделка. Лофт. Высокие потолки. Высота потолка: 5м. Тип налогообложения: С НДС. Лот 85327-87
lock

Войдите или зарегистрируйтесь
для просмотра информации

Просматривайте условия сделки и всю информацию об объекте
Сохраняйте фильтры в поиске и не вводите заново
Доступ к избранному с любого устройства
Неограниченное добавление в избранное
Позвоните автору
Вам ответят на все вопросы
Остались вопросы по объявлению?
Позвоните владельцу объявления и уточните необходимую информацию.
  • Инфраструктура
  • Похожие рядом
Помощь надёжных риелторов
Риелтор партнёр Циан поможет купить или продать любую недвижимость
2 054 999 ₽/мес.

Прямая аренда (от года)

26 951 $/мес.
23 054 /мес.
Цена за метр
58 298 ₽ в год
Налог
НДС включен: 370 573 ₽
Комиссия
нет
Коммунальные платежи
не включены
Эксплуатационные расходы
включены
Агентство недвижимости
Риелтор
Суперагент
5,0・1