Мы используем куки-файлы. Соглашение об использовании
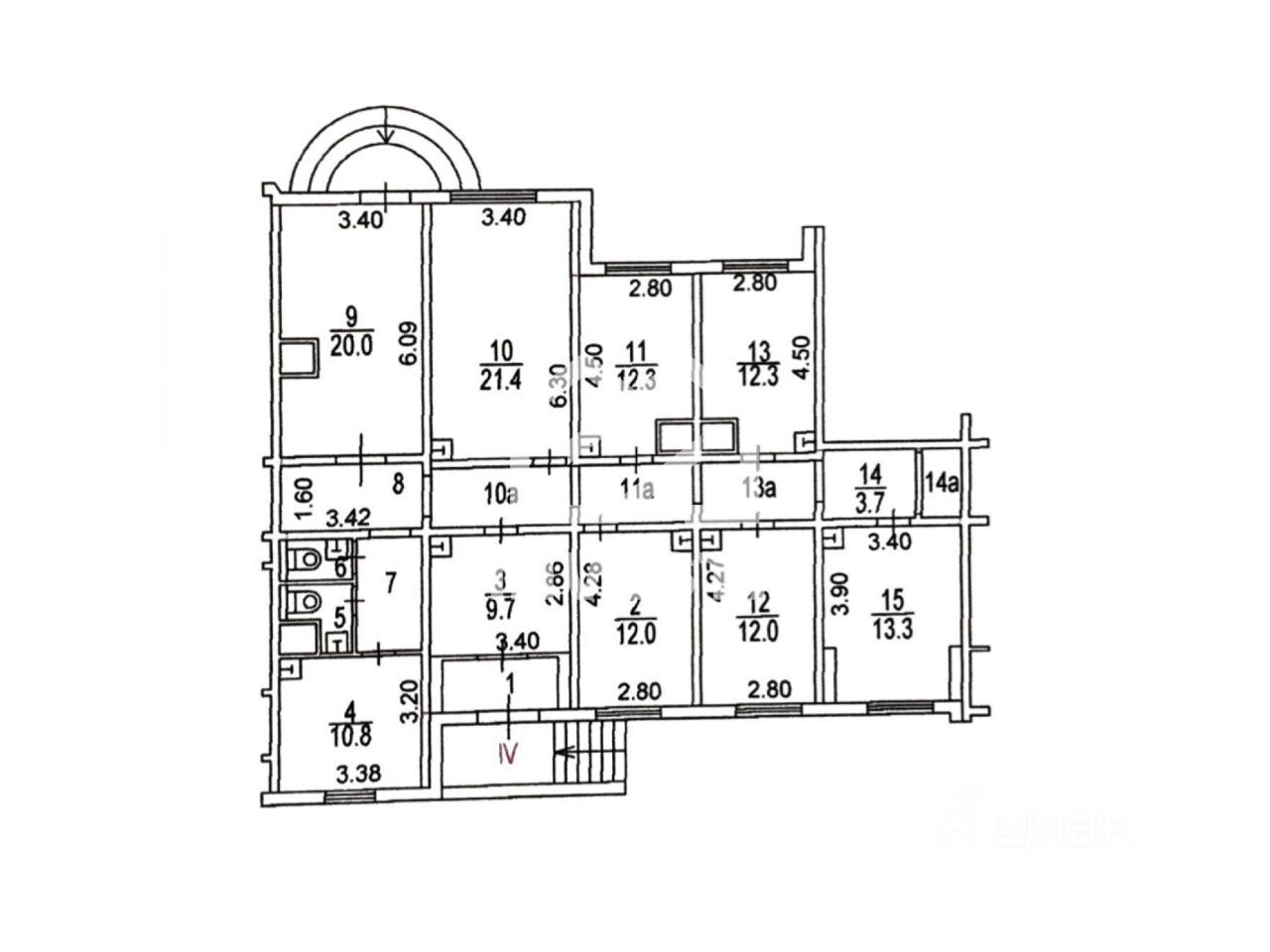
Помещение свободного назначения, 160 м²
Площадь160 м²
Этаж1 из 12
ПомещениеЗанято
Отчёт о привлекательности объектаУзнайте, насколько помещение и район подходят для вашего бизнеса
Что входит в отчёт
  • Охват населения
  • Пешеходный трафик
  • Автомобильный трафик
  • Средний бюджет семьи по району
  • Арендные ставки рядом
  • Точки притяжения
  • Конкуренты в радиусе 1 км
  • Рекомендации по выбору места для бизнеса
Сейчас помещение оборудовано под медицинский центр, фотографии актуальные, сдается целиком, возможна переориентация на любой вид бизнеса. Расположено в густонаселенном районе, в 1 минуте от метро Бульвар Дмитрия Донского и Улица Старокачаловская. Высокая проходимость!!! Помещение имеет два входа (с улицы главный вход и со двора). Сдаю собственник, риэлторам выплачиваю комиссию (100% от суммы месячной аренды). Если не дозвонились, значит я нахожусь за границей, напишите мне сообщение в ЦИАН, обязательно свяжусь с вами.
lock

Войдите или зарегистрируйтесь
для просмотра информации

Просматривайте условия сделки и всю информацию об объекте
Сохраняйте фильтры в поиске и не вводите заново
Доступ к избранному с любого устройства
Неограниченное добавление в избранное
Позвоните автору
Вам ответят на все вопросы
Остались вопросы по объявлению?
Позвоните владельцу объявления и уточните необходимую информацию.
  • Инфраструктура
  • Похожие рядом
  • Тип зданияЖилой дом
  • Общая площадь160 м²
Естественная вентиляция
Местное кондиционирование
Центральное отопление
Сигнализация
Помощь надёжных риелторов
Риелтор партнёр Циан поможет купить или продать любую недвижимость
РиелторДмитрий Кирюшин
Суперагент
  • 1,0・1
  • 11 лет 10 месяцев на Циане
  • 1 объявление
  • 400 000 ₽/мес.

    Прямая аренда (от года), минимальный срок аренды 24 месяца, доступны арендные каникулы, обеспечительный платёж 400000 ₽, предоплата за 1 месяц

    5 317 $/мес.
    4 526 /мес.
    Цена за метр
    30 000 ₽ в год
    Налог
    УСН
    Комиссия
    нет
    Коммунальные платежи
    не включены
    Эксплуатационные расходы
    включены
    РиелторДмитрий Кирюшин
    Суперагент