Мы используем куки-файлы. Соглашение об использовании
Площадь2 606 м²
Этаж2 из 3
Парковка200 мест
ПомещениеСвободно
КлассB
Отчёт о привлекательности объектаУзнайте, насколько помещение и район подходят для вашего бизнеса
Что входит в отчёт
  • Охват населения
  • Пешеходный трафик
  • Автомобильный трафик
  • Средний бюджет семьи по району
  • Арендные ставки рядом
  • Точки притяжения
  • Конкуренты в радиусе 1 км
  • Рекомендации по выбору места для бизнеса
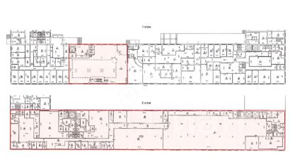
Аренда офиса 2606 кв. м в бизнес-центре "Лихоборский" (класс B). Этаж: 1-2. Изолированное помещение целиком с отдельным входом. Отделка - с отделкой Тип планировки - смешанная. Мокрые точки - да Сан. узлы - в блоке Назначение: Офис Если вам не нужно все помещение - можете арендовать логически выделенные блоки, идеально подходящие для вашего бизнеса 1 307,9 кв.м. или 1 197,9 кв.м. Полная ставка аренды , если вы готовы взять на себя ремонтные работы - 16 000 руб. за кв. м/год. НДС включен, эксплуатация включена Месячный арендный платеж 3 474 667 руб./месяц. Коммунальные расходы - По счётчикам Если заехать в готовый офис с новым ремонтом - ставка аренды будет 24 000,00 руб./кв.м./год, вкл. НДС Парковка: Стоимость одного машиноместа составляет 6 100 рублей в месяц. Бизнес-центр "Лихоборский" находится по адресу: Москва, Дмитровское шоссе, 60А. Район: Бескудниковский Год постройки здания: 2008 Налоговая: 13 Ближайшие станции метро: Верхние Лихоборы (12 минут пешком) Юридический адрес: предоставляется Позвоните и мы ответим на все Ваши вопросы, направим презентацию с планировками и оперативно организуем показ. Наши услуги для Вас бесплатны! Для быстрого поиска объекта в СРМ назовите менеджеру ID данного помещения - 14000
lock

Войдите или зарегистрируйтесь
для просмотра информации

Просматривайте условия сделки и всю информацию об объекте
Сохраняйте фильтры в поиске и не вводите заново
Доступ к избранному с любого устройства
Неограниченное добавление в избранное
Позвоните автору
Вам ответят на все вопросы
Остались вопросы по объявлению?
Позвоните владельцу объявления и уточните необходимую информацию.
  • Инфраструктура
  • Похожие рядом
Помощь надёжных риелторов
Риелтор партнёр Циан поможет купить или продать любую недвижимость
3 474 667 ₽/мес.

Прямая аренда (от года)

45 687 $/мес.
38 769 /мес.
Цена за метр
16 000 ₽ в год
Налог
НДС включен: 626 526 ₽
Комиссия
нет
Коммунальные платежи
не включены
Эксплуатационные расходы
включены
Агентство недвижимости
Документы проверены
На Циан
7 лет
Объектов в работе
693