Мы используем куки-файлы. Соглашение об использовании
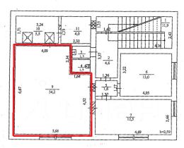
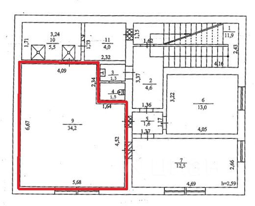
Площадь34,2 м²
Этаж2 из 2
Выс. потолков2.7 м.
Отчёт о привлекательности объектаУзнайте, насколько помещение и район подходят для вашего бизнеса
Что входит в отчёт
  • Охват населения
  • Пешеходный трафик
  • Автомобильный трафик
  • Средний бюджет семьи по району
  • Арендные ставки рядом
  • Точки притяжения
  • Конкуренты в радиусе 1 км
  • Рекомендации по выбору места для бизнеса
Предлагается в аренду помещение свободного назначения 34,20 м2 в капитальном здании на 2-м этаже. Подойдет для размещения склада, небольшого производства. Вход в помещение по лестнице, лифта нет. Входная стандартная дверь 200/80 см. Расположен в здании без отопления. Отопление возможно только от электричества. В здании есть вода и канализация. Необходимо оборудовать пожарную сигнализацию в зависимости от вида деятельности арендатора и застраховать помещение от несчастного случая. Огороженная и охраняемая территория. Арендная ставка включает НДС. Удобное местоположение на юго-востоке Москвы по адресу ул. Иловайская д.10а, с.4. Лот PN-286
lock

Войдите или зарегистрируйтесь
для просмотра информации

Просматривайте условия сделки и всю информацию об объекте
Сохраняйте фильтры в поиске и не вводите заново
Доступ к избранному с любого устройства
Неограниченное добавление в избранное
Позвоните автору
Вам ответят на все вопросы
Остались вопросы по объявлению?
Позвоните владельцу объявления и уточните необходимую информацию.
  • Инфраструктура
  • Похожие рядом
Помощь надёжных риелторов
Риелтор партнёр Циан поможет купить или продать любую недвижимость
Управляющая компанияПрофис-недвижимость
Суперагент
  • 14 лет 9 месяцев на Циане
  • 307 объявлений
  • 23 940 ₽/мес.
    331 $/мес.
    285 /мес.
    Цена за метр
    8 400 ₽ в год
    Налог
    НДС включен: 4 315 ₽
    Комиссия
    нет
    Коммунальные платежи
    не включены
    Эксплуатационные расходы
    включены
    Управляющая компанияПрофис-недвижимость
    Суперагент