Мы используем куки-файлы. Соглашение об использовании
Помещение свободного назначения, 135 м²

Сдается помещение свободного назначения, 135 м²

Площадь135 м²
Этаж1 из 4
Отчёт о привлекательности объектаУзнайте, насколько помещение и район подходят для вашего бизнеса
Что входит в отчёт
  • Охват населения
  • Пешеходный трафик
  • Автомобильный трафик
  • Средний бюджет семьи по району
  • Арендные ставки рядом
  • Точки притяжения
  • Конкуренты в радиусе 1 км
  • Рекомендации по выбору места для бизнеса
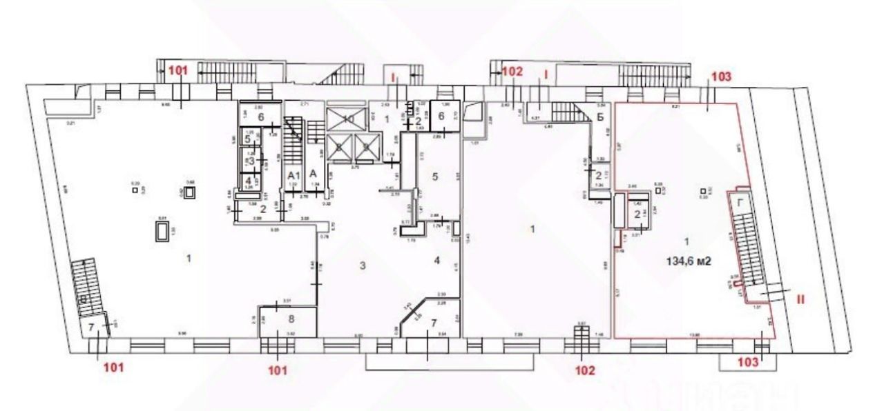
ID 63123 Предлагаю в аренду помещение свободного назначения площадью 135 м2 расположенное на первом этаже административного здания по адресу: Малая Сухаревская площадь, д.6, стр1. Первая линия Садового кольца. Два отдельных входа, зальная планировка, витринное остекление. Высота потолков 4,5 м. Все коммуникации в наличии, электрическая мощность 50 кВт. Вывеска на фасаде. Отличная локация, минута пешком от станции метро Сухаревская. Трафик. Ставка аренды указана с учетом НДС 22% , коммунальные платежи оплачиваются отдельно. Номер в базе: J63123
lock

Войдите или зарегистрируйтесь
для просмотра информации

Просматривайте условия сделки и всю информацию об объекте
Сохраняйте фильтры в поиске и не вводите заново
Доступ к избранному с любого устройства
Неограниченное добавление в избранное
Позвоните автору
Вам ответят на все вопросы
Остались вопросы по объявлению?
Позвоните владельцу объявления и уточните необходимую информацию.
  • Инфраструктура
  • Похожие рядом
Помощь надёжных риелторов
Риелтор партнёр Циан поможет купить или продать любую недвижимость
976 000 ₽/мес.
12 974 $/мес.
11 083 /мес.
Цена за метр
86 756 ₽ в год
Налог
НДС включен: 176 000 ₽
Комиссия
нет
Коммунальные платежи
не включены
Эксплуатационные расходы
не включены
Агентство недвижимости
Суперагент
На Циан
21 год
Объектов в работе
547