Мы используем куки-файлы. Соглашение об использовании
Помещение свободного назначения, 99,4 м²

Сдается помещение свободного назначения (B)

Площадь99,4 м²
Этаж1 из 1
КлассB
Отчёт о привлекательности объектаУзнайте, насколько помещение и район подходят для вашего бизнеса
Что входит в отчёт
  • Охват населения
  • Пешеходный трафик
  • Автомобильный трафик
  • Средний бюджет семьи по району
  • Арендные ставки рядом
  • Точки притяжения
  • Конкуренты в радиусе 1 км
  • Рекомендации по выбору места для бизнеса
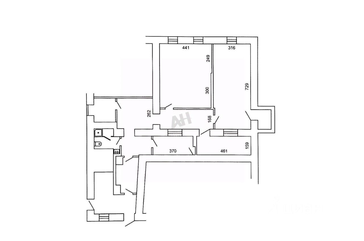
Лот 1056015 Предложение от Собственника! Предлагается в аренду помещение с отдельным входом на 1-м этаже, в 5-ти минутах ходьбы от метро Китай город и Чистые пруды, в историческом центре Москвы. вход в помещение со двора через арку с Армянского переулка. Помещение после ремонта и готово к въезду. Планировка: 3 кабинета, зона ресепшн, мини-кухня, отдельный с/ у с душем. Возможна организации парковки во дворе. В цену не включено: затраты на электричество, коммунальные расходы, уборка. Обеспечительный платеж 1 месяц. Чтобы получить ПОДРОБНУЮ ПРЕЗЕНТАЦИЮ С ПЛАНИРОВКОЙ И ФОТОГРАФИЯМИ, звоните или отправьте свой email и номер телефона в сообщении на портале. Высылаем в течение 15 минут по запросу! Конт. лицо: Роман Михайлович, доб. 251, ЛОТ 1056015
lock

Войдите или зарегистрируйтесь
для просмотра информации

Просматривайте условия сделки и всю информацию об объекте
Сохраняйте фильтры в поиске и не вводите заново
Доступ к избранному с любого устройства
Неограниченное добавление в избранное
Позвоните автору
Вам ответят на все вопросы
Остались вопросы по объявлению?
Позвоните владельцу объявления и уточните необходимую информацию.
  • Инфраструктура
  • Похожие рядом
Помощь надёжных риелторов
Риелтор партнёр Циан поможет купить или продать любую недвижимость
323 042 ₽/мес.

Прямая аренда (от года), обеспечительный платёж 323041 ₽

4 319 $/мес.
3 644 /мес.
Цена за метр
38 999 ₽ в год
Налог
УСН
Комиссия
нет
Коммунальные платежи
не включены
Эксплуатационные расходы
включены
Агентство недвижимости
Риелтор
Суперагент