Мы используем куки-файлы. Соглашение об использовании
Помещение свободного назначения, 980 м²

Сдается помещение свободного назначения, 980 м²

Площадь980 м²
Этаж1 из 3
Отчёт о привлекательности объектаУзнайте, насколько помещение и район подходят для вашего бизнеса
Что входит в отчёт
  • Охват населения
  • Пешеходный трафик
  • Автомобильный трафик
  • Средний бюджет семьи по району
  • Арендные ставки рядом
  • Точки притяжения
  • Конкуренты в радиусе 1 км
  • Рекомендации по выбору места для бизнеса
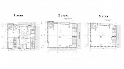
АРЕНДА СВОБОДНОГО ПОМЕЩЕНИЯ м. "Китай-город" в пешей доступности. Сдаётся помещение 980 м². 1-я линия домов. Витринные окна. Отдельно стоящее здание. Помещение размещается на трех уровнях. Высота потолков: 1-й этаж 3,5 м, 2-й этаж 4 м, 3-й этаж 8 м. Гараж с фасада на 4 машины. Система "умный дом". Подключенная мощность 200 кВт. Можно установить вытяжку для общепита. Подойдет для ресторана, офиса, представительства, клуба, дизайн-бюро.Точки притяжения: высокий пешеходный трафик Ближайшие станции метро: Китай-город Помещение подойдет для: Торговая площадь ID - 569278
lock

Войдите или зарегистрируйтесь
для просмотра информации

Просматривайте условия сделки и всю информацию об объекте
Сохраняйте фильтры в поиске и не вводите заново
Доступ к избранному с любого устройства
Неограниченное добавление в избранное
Позвоните автору
Вам ответят на все вопросы
Остались вопросы по объявлению?
Позвоните владельцу объявления и уточните необходимую информацию.
  • Инфраструктура
  • Похожие рядом
  • Тип зданияСвободное
  • Общая площадь980 м²
Помощь надёжных риелторов
Риелтор партнёр Циан поможет купить или продать любую недвижимость
4 000 000 ₽/мес.
53 089 $/мес.
45 276 /мес.
Цена за метр
48 980 ₽ в год
Налог
НДС включен: 721 311 ₽
Комиссия
нет
Коммунальные платежи
не включены
Эксплуатационные расходы
не включены
Агентство недвижимости
Документы проверены
Риелтор