Мы используем куки-файлы. Соглашение об использовании
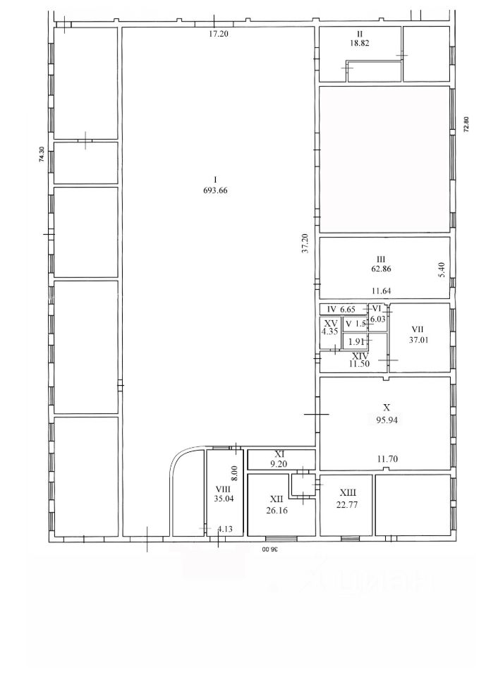
Помещение свободного назначения, 1 057,71 м²

Сдается помещение свободного назначения, 1 057,71 м²

Площадь1 057,71 м²
Этаж1 из 1
Отчёт о привлекательности объектаУзнайте, насколько помещение и район подходят для вашего бизнеса
Что входит в отчёт
  • Охват населения
  • Пешеходный трафик
  • Автомобильный трафик
  • Средний бюджет семьи по району
  • Арендные ставки рядом
  • Точки притяжения
  • Конкуренты в радиусе 1 км
  • Рекомендации по выбору места для бизнеса
Сдаётся в аренду помещение площадью 1057,71 кв.м полностью, возможно с покрасочной камерой. Мощность подключаемого электрооборудования по потребности. Помещение оборудовано одной камерой для окраски и сушки. Водоснабжение горячее и холодное, канализация. В стоимость арендной ставки не включены коммунальные платежи (по показаниям счётчиков). В здание проведён проводной интернет, от Вас только заключить договор с провайдером . Территория охраняемая, есть автостоянка, в само помещение арендаторам доступ 24 часа в сутки. Техцентр расположен в парковой зоне на берегу Сходненского канала, на территории есть ресторан-пиццерия, автомойка, автосервисы. Аренда от собственника! БЕЗ АГЕНТСКОЙ КОМИССИИ. Ещё раз по условиям предоставления помещений в аренду. 1. Вы смотрите помещение (по предварительной договорённости). 2. Встречаетесь с собственником для окончательного принятия решения об аренде (возможно не понадобится встречаться - решает собственник). 3. Заключаем договор аренды. 4. На основании договора вносите арендную плату за первый месяц и страховой депозит в размере месячной арендной платы. 5. Помещение освободится 01.10.2026 - можно сразу занять или провести необходимый ремонт (по желанию).
lock

Войдите или зарегистрируйтесь
для просмотра информации

Просматривайте условия сделки и всю информацию об объекте
Сохраняйте фильтры в поиске и не вводите заново
Доступ к избранному с любого устройства
Неограниченное добавление в избранное
Позвоните автору
Вам ответят на все вопросы
Остались вопросы по объявлению?
Позвоните владельцу объявления и уточните необходимую информацию.
  • Инфраструктура
  • Похожие рядом
  • Тип зданияПроизводственное здание
  • Площадь участка1,6 га
  • Общая площадь1 400 м²
  • Статус участкаВ аренде
Приточная вентиляция
Местное кондиционирование
Центральное отопление
Гидрантная система пожаротушения
Помощь надёжных риелторов
Риелтор партнёр Циан поможет купить или продать любую недвижимость
  • 5,0・1
  • 9 лет 8 месяцев на Циане
  • 2 объявления
  • 2 687 641 ₽/мес.

    Прямая аренда (от года), минимальный срок аренды 11 месяцев, обеспечительный платёж 2687641 ₽, предоплата за 1 месяц

    35 627 $/мес.
    30 450 /мес.
    Цена за метр
    30 492 ₽ в год
    Налог
    НДС включен: 484 656 ₽
    Комиссия
    нет
    Коммунальные платежи
    не включены
    Эксплуатационные расходы
    не включены