Мы используем куки-файлы. Соглашение об использовании
Помещение свободного назначения, 70 м²

Сдается помещение свободного назначения, 70 м²

Площадь70 м²
Этаж1 из 2
Отчёт о привлекательности объектаУзнайте, насколько помещение и район подходят для вашего бизнеса
Что входит в отчёт
  • Охват населения
  • Пешеходный трафик
  • Автомобильный трафик
  • Средний бюджет семьи по району
  • Арендные ставки рядом
  • Точки притяжения
  • Конкуренты в радиусе 1 км
  • Рекомендации по выбору места для бизнеса
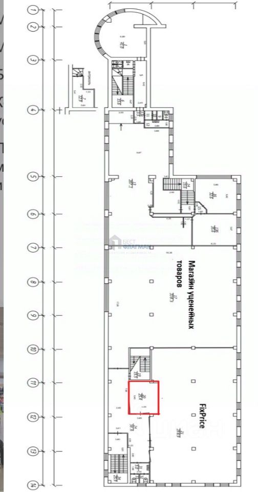
Арт. 133029004 1-й Этаж со стороны метро Торговая площадь 3 Площадь: 70 м2 Арендная плата: 315 тыс.руб. в мес. в т.ч. НДС Депозит: 1 мес. Высота потолков: 3,5 м Мокрая точка: имеется Мощность: 15 кВт Бесплатная парковка Эксплуатационные услуги включены в арендную плату, коммуналка по счетчику Предоставляем скидку на первые месяцы аренды и скидку на летний сезон Предоставляем рекламную вывеску на фасаде здания
lock

Войдите или зарегистрируйтесь
для просмотра информации

Просматривайте условия сделки и всю информацию об объекте
Сохраняйте фильтры в поиске и не вводите заново
Доступ к избранному с любого устройства
Неограниченное добавление в избранное
Позвоните автору
Вам ответят на все вопросы
Остались вопросы по объявлению?
Позвоните владельцу объявления и уточните необходимую информацию.
  • Инфраструктура
  • Похожие рядом
Помощь надёжных риелторов
Риелтор партнёр Циан поможет купить или продать любую недвижимость
315 000 ₽/мес.

Прямая аренда (от года), доступны арендные каникулы, обеспечительный платёж 315000 ₽, предоплата за 1 месяц

4 414 $/мес.
3 764 /мес.
Цена за метр
54 000 ₽ в год
Налог
УСН
Комиссия
нет
Коммунальные платежи
включены
Эксплуатационные расходы
не включены
Агентство недвижимости
Документы проверены