Мы используем куки-файлы. Соглашение об использовании

Готовый офис с отдельным входом

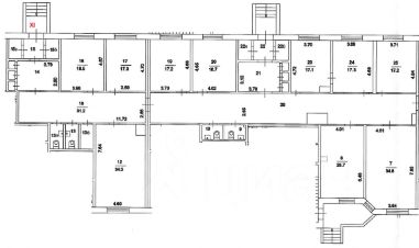
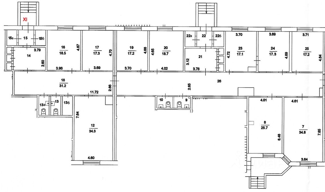
Площадь360 м²
Этаж1 из 10
Отчёт о привлекательности объектаУзнайте, насколько помещение и район подходят для вашего бизнеса
Что входит в отчёт
  • Охват населения
  • Пешеходный трафик
  • Автомобильный трафик
  • Средний бюджет семьи по району
  • Арендные ставки рядом
  • Точки притяжения
  • Конкуренты в радиусе 1 км
  • Рекомендации по выбору места для бизнеса
Собственник предлагает в аренду офис площадью 360 кв.м. Офис расположен на первом этаже жилого дома в 10 минутах ходьбы от ст. м. Беляево и имеет 2 отдельных входа. 10 изолированных кабинетов, 4 санузла, серверная с оборудованием. Кондиционеры во всех кабинетах и серверных. Высота потолка 2,7 м., электрическая мощность 29 кВт. Система СКС компьютерная сеть, телефония, МГТС, интернет. Охранно-пожарная сигнализация, видеодомофоны, металлические рольставни на всех окнах. В офисе выполнена отделка подвесные потолки Армстронг; напольное покрытие: в кабинетах линолеум, в коридоре и с/у плитка; стены: обои под покраску, деревянные панели (отбойники) в кабинетах и коридоре; стеклопакеты, жалюзи; деревянные двери. Бесплатная парковка. Удобный и быстрый выезд на ул. Профсоюзная. При заключении договора аренды оплачивается первый месяц аренды (600 000 руб.), последний месяц аренды (600 000 руб.) и обеспечительный платеж (600 000 руб.). Коммунальные и эксплуатационные расходы, услуги связи оплачиваются отдельно. Стоимость аренды указана с учетом НДС 5%. Прямая аренда. Собственник.
lock

Войдите или зарегистрируйтесь
для просмотра информации

Просматривайте условия сделки и всю информацию об объекте
Сохраняйте фильтры в поиске и не вводите заново
Доступ к избранному с любого устройства
Неограниченное добавление в избранное
Позвоните автору
Вам ответят на все вопросы
Остались вопросы по объявлению?
Позвоните владельцу объявления и уточните необходимую информацию.
  • Инфраструктура
  • Похожие рядом
  • Общая площадь360 м²
Естественная вентиляция
Местное кондиционирование
Центральное отопление
Сигнализация
Помощь надёжных риелторов
Риелтор партнёр Циан поможет купить или продать любую недвижимость
Управляющая компанияКОМВИД
  • Документы проверены
  • 9 лет 11 месяцев на Циане
  • 7 объявлений
  • 600 000 ₽/мес.

    Прямая аренда (от года), минимальный срок аренды 11 месяцев, обеспечительный платёж 600000 ₽, предоплата за 2 месяца

    8 076 $/мес.
    6 776 /мес.
    Цена за метр
    20 000 ₽ в год
    Налог
    НДС включен: 108 196 ₽
    Комиссия
    нет
    Коммунальные платежи
    не включены
    Эксплуатационные расходы
    не включены
    Управляющая компанияКОМВИД
    Документы проверены