Мы используем куки-файлы. Соглашение об использовании
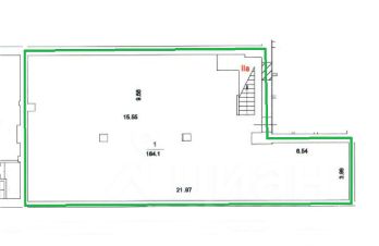
Площадь388,5 м²
Этаж1 из 1
Отчёт о привлекательности объектаУзнайте, насколько помещение и район подходят для вашего бизнеса
Что входит в отчёт
  • Охват населения
  • Пешеходный трафик
  • Автомобильный трафик
  • Средний бюджет семьи по району
  • Арендные ставки рядом
  • Точки притяжения
  • Конкуренты в радиусе 1 км
  • Рекомендации по выбору места для бизнеса
Прямая аренда от собственника! Предлагается помещение 388,5 кв. м. (207,7 кв. м на 1 этаже + 164,1 кв. м подвальный этаж, + 16,7 цокольный этаж) По адресу: г. Москва, ПСН Комсомольский пр-т, д.15, стр.2. - Хороший ремонт. Первая линия. Отдельная входная группа. - Большие витринные окна от потолка до пола. Все витрины вдоль Комсомольского проспекта. - Размещение вывески на фасаде здания над входом в помещение; - Время работы 24/7. - Высота потолков 1 эт - 2,61 м, Подвал 2,16 м. - Идеально подходит под магазин, ресторан, пекарню, сферу услуг, салон красоты! - Помещение свободно с 01.05.2026 года. - Имеются все необходимые коммуникации. - Коммунальные и эксплуатационные расходы по отдельно выставляемым счетам (по приборам учета и счетам от комм. служб). - Проходное место, от метро Фрунзенская 10 минут. - Предоставляемая мощность - 52 кВт. - Каникулы обсуждаются. - Инфраструктура: МДМ, Медицинский университет им. Сеченова, МПГУ, Митхт им. М.В. Ломоносова, Военный университет, парк, школы, музеи, бизнес-центры, жилой массив и т.д.
lock

Войдите или зарегистрируйтесь
для просмотра информации

Просматривайте условия сделки и всю информацию об объекте
Сохраняйте фильтры в поиске и не вводите заново
Доступ к избранному с любого устройства
Неограниченное добавление в избранное
Позвоните автору
Вам ответят на все вопросы
Остались вопросы по объявлению?
Позвоните владельцу объявления и уточните необходимую информацию.
  • Инфраструктура
  • Похожие рядом
Помощь надёжных риелторов
Риелтор партнёр Циан поможет купить или продать любую недвижимость
Управляющая компанияТОДО МЕНЕДЖМЕНТ
  • Документы проверены
  • 11 лет 1 месяц на Циане
  • 9 объявлений
  • 1 210 000 ₽/мес.

    Прямая аренда (от года), минимальный срок аренды 12 месяцев, обеспечительный платёж 2420000 ₽, предоплата за 1 месяц

    16 286 $/мес.
    13 665 /мес.
    Цена за метр
    37 375 ₽ в год
    Налог
    НДС включен: 218 196 ₽
    Комиссия
    нет
    Коммунальные платежи
    не включены
    Эксплуатационные расходы
    не включены
    Управляющая компанияТОДО МЕНЕДЖМЕНТ
    Документы проверены