Мы используем куки-файлы. Соглашение об использовании
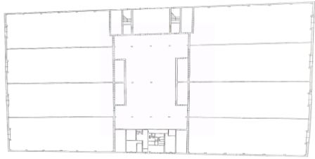
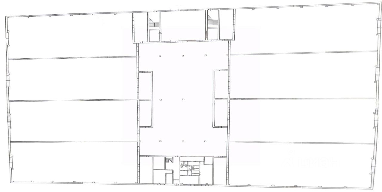
Площадь6 840,1 м²
Этаж1 из 1
Выс. потолков7.0 м.
Отчёт о привлекательности объектаУзнайте, насколько помещение и район подходят для вашего бизнеса
Что входит в отчёт
  • Охват населения
  • Пешеходный трафик
  • Автомобильный трафик
  • Средний бюджет семьи по району
  • Арендные ставки рядом
  • Точки притяжения
  • Конкуренты в радиусе 1 км
  • Рекомендации по выбору места для бизнеса
1097999. Предлагается помещение общей площадью 6 840,1 кв. м. в складском комплексе в Ступино. Цех 5. Преимущества: 14 км до Каширского шоссе. 48 км до ЦКАД. Склад находится по трассе А-108 (большое третье транспортное кольцо). На территории ж/д ветка. Помещение имеет: отопление - тепловентиляторы, водоснабжение, канализацию. Возможность установки: высокоскоростного интернета, IP-телефонии. Огороженная колючей проволокой, освещенная территория. Круглосуточное видеонаблюдение. Охраняемая стоянка для легковых и большегрузных автомобилей. Пункт весового контроля. Кафе-столовая на территории. Бетонный пол с антипылевым покрытием. Все склады оснащены системой температурно-влажностного контроля. Перед зданием площадка под открытое хранение. Возможна аренда помещений от 650 кв. м. с различными температурными режимами. Предоставление услуг ответственного хранения. Возможность аренды комфортабельного офиса на территории базы. Собственная современная автоматизированная система управления товародвижением. Ветеринарное освидетельствование складских помещений. Технические характеристики: Общая площадь: 6 840 кв. м. Площадь земельного участка: 24,5 Га. Нагрузка на пол: 5 т/м2. Высота потолков: 7,06 м, до низа фермы 5,40 м. Электрическая мощность: 300 кВт, с возможностью увеличения. Так как корректный адрес отсутствует на Яндекс.Картах, введен ближайший.
lock

Войдите или зарегистрируйтесь
для просмотра информации

Просматривайте условия сделки и всю информацию об объекте
Сохраняйте фильтры в поиске и не вводите заново
Доступ к избранному с любого устройства
Неограниченное добавление в избранное
Позвоните автору
Вам ответят на все вопросы
Остались вопросы по объявлению?
Позвоните владельцу объявления и уточните необходимую информацию.
  • Инфраструктура
  • Похожие рядом
  • Тип зданияСкладской комплекс
  • Общая площадь6 840,1 м²
Помощь надёжных риелторов
Риелтор партнёр Циан поможет купить или продать любую недвижимость
4 172 461 ₽/мес.

Прямая аренда (от года), предоплата за 1 месяц

58 219 $/мес.
50 091 /мес.
Цена за метр
7 320 ₽ в год
Налог
НДС включен: 752 411 ₽
Комиссия
нет
Коммунальные платежи
не включены
Эксплуатационные расходы
не включены
Агентство недвижимости
Документы проверены