Мы используем куки-файлы. Соглашение об использовании

Сдается офис (B)

    Площадь289,7 м²
    Этаж2 из 4
    ПомещениеСвободно
    КлассB
    Отчёт о привлекательности объектаУзнайте, насколько помещение и район подходят для вашего бизнеса
    Что входит в отчёт
    • Охват населения
    • Пешеходный трафик
    • Автомобильный трафик
    • Средний бюджет семьи по району
    • Арендные ставки рядом
    • Точки притяжения
    • Конкуренты в радиусе 1 км
    • Рекомендации по выбору места для бизнеса
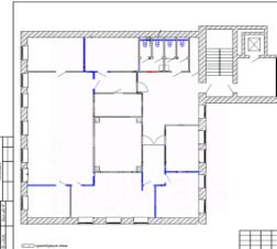
    Аренда офиса 289.7 кв. м в особняке "Подсосенский переулок, 23с2" (класс B). Этаж: 2. Отделка - с отделкой Наличие мебели - с мебелью Тип планировки - смешанная. Вход - общий с улицы Мокрые точки - да Сан. узлы - в блоке Назначение: Офис Полная ставка аренды - 52 192 руб. за кв. м/год. НДС включен, эксплуатация включена Месячный арендный платеж 1 260 002 руб./месяц. Коммунальные расходы - По счётчикам Особняк "Подсосенский переулок, 23с2" находится по адресу: Москва, Подсосенский переулок, 23с2. Район: Басманный Год постройки здания: 1990 Налоговая: 9 Наличие паркинга: городской Вентиляция: приточно-вытяжная Ближайшие станции метро: Курская (8 минут пешком) Инфраструктура: Медицинский центр, Салон красоты Юридический адрес: предоставляется Позвоните и мы ответим на все Ваши вопросы, направим презентацию с планировками и оперативно организуем показ. Наши услуги для Вас бесплатны! Для быстрого поиска объекта в СРМ назовите менеджеру ID данного помещения - 9216
    lock

    Войдите или зарегистрируйтесь
    для просмотра информации

    Просматривайте условия сделки и всю информацию об объекте
    Сохраняйте фильтры в поиске и не вводите заново
    Доступ к избранному с любого устройства
    Неограниченное добавление в избранное
    Позвоните автору
    Вам ответят на все вопросы
    Остались вопросы по объявлению?
    Позвоните владельцу объявления и уточните необходимую информацию.
    • Инфраструктура
    • Похожие рядом

    Подсосенский переулок, 23с2

    • Год постройки1990
    • Общая площадь1 551 м²
    Помощь надёжных риелторов
    Риелтор партнёр Циан поможет купить или продать любую недвижимость
    1 260 002 ₽/мес.

    Прямая аренда (от года)

    15 803 $/мес.
    13 667 /мес.
    Цена за метр
    52 192 ₽ в год
    Налог
    НДС включен: 227 198 ₽
    Комиссия
    нет
    Коммунальные платежи
    не включены
    Эксплуатационные расходы
    включены
    Агентство недвижимости
    Суперагент
    На Циан
    7 лет
    Объектов в работе
    740