Мы используем куки-файлы. Соглашение об использовании
Помещение свободного назначения, 581,5 м²

Сдается помещение свободного назначения, 581,5 м²

Площадь581,5 м²
Этаж1 из 7
Отчёт о привлекательности объектаУзнайте, насколько помещение и район подходят для вашего бизнеса
Что входит в отчёт
  • Охват населения
  • Пешеходный трафик
  • Автомобильный трафик
  • Средний бюджет семьи по району
  • Арендные ставки рядом
  • Точки притяжения
  • Конкуренты в радиусе 1 км
  • Рекомендации по выбору места для бизнеса
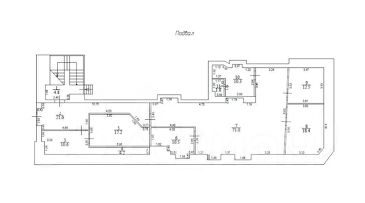
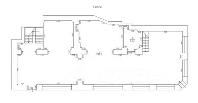
Предлагаем в аренду уникальное помещение на первой линии Садового кольца. Красивые витринные окна, два отдельных входа. Зальная планировка. Высота потолков 4,6 м. Электричество 140 кВт Общая площадь 581,5 кв.м (1 этаж 290,5 м2., антресоль 97,7 м2., подвал 278,8 м2) Помещение расположено в очень проходимой локации, с высоким пешеходным трафиком, в 5 минутах ходьбы бизнес центры "Оружейный и Эрмитаж плаза", численность сотрудников превышает 60 000 тысяч человек, также по соседству с помещением располагаются театр, ГИБДД по России, Минстрой России и жилой фонд, все это создает очень высокий трафик с возможностью создания любого бизнес проекта успешным. Прямой договор с собственником. НДС включен в стоимость. Без комиссий и скрытых платежей. Ваш персональный брокер - Ирина. Если у вас остались вопросы или вы готовы посмотреть помещение позвоните нам. Мы более детально расскажем про технические характеристики и особенности помещения. ДЕЛИМСЯ КОМИССИЕЙ С АГЕНТАМИ.
lock

Войдите или зарегистрируйтесь
для просмотра информации

Просматривайте условия сделки и всю информацию об объекте
Сохраняйте фильтры в поиске и не вводите заново
Доступ к избранному с любого устройства
Неограниченное добавление в избранное
Позвоните автору
Вам ответят на все вопросы
Остались вопросы по объявлению?
Позвоните владельцу объявления и уточните необходимую информацию.
  • Инфраструктура
  • Похожие рядом
  • Общая площадь581,5 м²
Приточная вентиляция
Центральное кондиционирование
Центральное отопление
Помощь надёжных риелторов
Риелтор партнёр Циан поможет купить или продать любую недвижимость
2 000 000 ₽/мес.

Прямая аренда (от года), минимальный срок аренды 12 месяцев, доступны арендные каникулы, предоплата за 1 месяц

28 160 $/мес.
24 202 /мес.
Цена за метр
41 273 ₽ в год
Налог
НДС включен: 360 655 ₽
Комиссия
нет
Коммунальные платежи
не включены
Эксплуатационные расходы
не включены
Агентство недвижимости
Документы проверены