Мы используем куки-файлы. Соглашение об использовании

Сдается торговая площадь, 256,3 м²

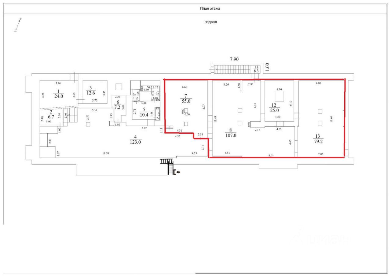
Площадь256,3 м²
Этаж-1 из 8
Отчёт о привлекательности объектаУзнайте, насколько помещение и район подходят для вашего бизнеса
Что входит в отчёт
  • Охват населения
  • Пешеходный трафик
  • Автомобильный трафик
  • Средний бюджет семьи по району
  • Арендные ставки рядом
  • Точки притяжения
  • Конкуренты в радиусе 1 км
  • Рекомендации по выбору места для бизнеса
Street retail со входом с первой линии на Сущевском Валу около станции метро Савеловская и недалеко от Савеловского вокзала. Доступ 24/7 Прямая аренда от кoмпaнии СОБСТВЕННИКА. Без комиссии! Помещение расположено в жилом многоэтажном здании на первой линии около ТТК. Интенсивный трафик за счет жилого массива, инфраструктуры (ТК Савеловский, несколько ЖК, университет, дизайн-завод Хлебозавод) и близко расположенной станции метро и вокзалу. Плотная заселенность арендаторами по соседству. В помещении есть общий небольшой коридор. Есть действующий арендатор Тату Студия. У каждого арендатора своя дверь ХАРАКТЕРИСТИКИ ПОМЕЩЕНИЯ: - Общая площадь 256.3 м² - Планировка с зонированием - Электрическая мощность 35 кВт - Есть общий оборудованный санузел - Доступ 24/7 - На данный момент в помещении стоит временное освещение, необходимо будет провести свой; есть счетчик - Центральное отопление - Спуск осуществляется по лестнице - Есть бесплатная хаотичная парковка по двум сторонам от здания - Есть свой выход во двор - Возможность разместить вывеску на фасаде УСЛОВИЯ АРЕНДЫ: - Арендная ставка 354 000 рублей в месяц + коммунальные платежи - Депозит 1 месяц - Арендные каникулы на ремонт ЗВОНИТЕ ПРЯМО СЕЙЧАС! Мы ответим на все интересующие вас вопросы и организуем оперативный показ.
lock

Войдите или зарегистрируйтесь
для просмотра информации

Просматривайте условия сделки и всю информацию об объекте
Сохраняйте фильтры в поиске и не вводите заново
Доступ к избранному с любого устройства
Неограниченное добавление в избранное
Позвоните автору
Вам ответят на все вопросы
Остались вопросы по объявлению?
Позвоните владельцу объявления и уточните необходимую информацию.
  • Инфраструктура
  • Похожие рядом
  • Тип зданияЖилой дом
  • Общая площадь256,3 м²
Естественная вентиляция
Центральное отопление
Спринклерная система пожаротушения
Помощь надёжных риелторов
Риелтор партнёр Циан поможет купить или продать любую недвижимость
Отдел арендыSellpoint
  • Документы проверены
  • 13 лет 1 месяц на Циане
  • 24 объявления
  • 354 000 ₽/мес.

    Прямая аренда (от года), минимальный срок аренды 11 месяцев, доступны арендные каникулы, предоплата за 1 месяц

    4 765 $/мес.
    3 998 /мес.
    Цена за метр
    16 575 ₽ в год
    Налог
    НДС включен: 63 836 ₽
    Комиссия
    нет
    Коммунальные платежи
    не включены
    Эксплуатационные расходы
    включены
    Отдел арендыSellpoint
    Документы проверены