Мы используем куки-файлы. Соглашение об использовании
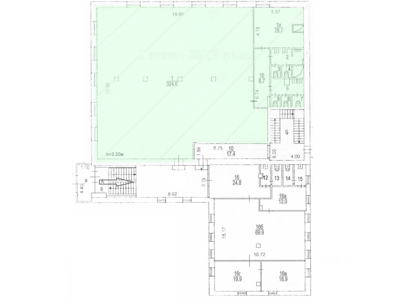
Площадь381,9 м²
Этаж1 из 3
Парковка23 места
ПомещениеСвободно
Отчёт о привлекательности объектаУзнайте, насколько помещение и район подходят для вашего бизнеса
Что входит в отчёт
  • Охват населения
  • Пешеходный трафик
  • Автомобильный трафик
  • Средний бюджет семьи по району
  • Арендные ставки рядом
  • Точки притяжения
  • Конкуренты в радиусе 1 км
  • Рекомендации по выбору места для бизнеса
Офисное помещение 381.9 кв. м в бизнес-центре "Золоторожский". Округ: Юго-Восточный (ЮВАО). Район: Лефортово. Ближайшие станции метро: Курская, Римская, Площадь Ильича. Характеристики: - Класс: B; - Арендопригодная площадь: 1980; - Код налоговой: 22; - Реконструкция: Да; - Кол-во мест наземного паркинга: 23; - Интернет-провайдеры: МГТС, Сити Телеком. Арендная ставка: 24 724.8 руб./кв. м в год. Без комиссии и скрытых платежей для арендатора. Готовы оперативно организовать просмотр в удобное время, предоставить PDF-презентацию и план. Точное местоположение объекта можно найти по данным координатам: 55.749183,37.682747 ID = c_1127008
lock

Войдите или зарегистрируйтесь
для просмотра информации

Просматривайте условия сделки и всю информацию об объекте
Сохраняйте фильтры в поиске и не вводите заново
Доступ к избранному с любого устройства
Неограниченное добавление в избранное
Позвоните автору
Вам ответят на все вопросы
Остались вопросы по объявлению?
Позвоните владельцу объявления и уточните необходимую информацию.
  • Инфраструктура
  • Похожие рядом
Помощь надёжных риелторов
Риелтор партнёр Циан поможет купить или продать любую недвижимость
РиелторBright Rich Moscow
Суперагент
786 714 ₽/мес.

Прямая аренда (от года), минимальный срок аренды 11 месяцев, доступны арендные каникулы, предоплата за 1 месяц

10 456 $/мес.
8 902 /мес.
Цена за метр
24 720 ₽ в год
Налог
НДС включен: 141 685 ₽
Комиссия
нет
Коммунальные платежи
не включены
Эксплуатационные расходы
не включены
Агентство недвижимости
На Циан
12 лет
Объектов в работе
более 1000
Риелтор
Суперагент