Мы используем куки-файлы. Соглашение об использовании
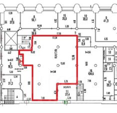
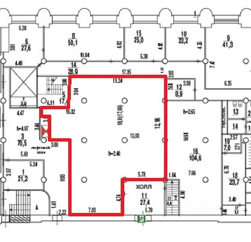
Площадь215,3 м²
Этаж1 из 6
Выс. потолков2.6 м.
ПомещениеСвободно
Отчёт о привлекательности объектаУзнайте, насколько помещение и район подходят для вашего бизнеса
Что входит в отчёт
  • Охват населения
  • Пешеходный трафик
  • Автомобильный трафик
  • Средний бюджет семьи по району
  • Арендные ставки рядом
  • Точки притяжения
  • Конкуренты в радиусе 1 км
  • Рекомендации по выбору места для бизнеса
ОТ СОБСТВЕННИКА! Освободился сухой, теплый склад на первом этаже офисно-складского комплекса "Москва Златоглавая". Общая площадь складского блока 215,3м2, ворота на пандус. Порошковая система пожаротушения. Центральное отопление. Внутренний двор (до еврофуры), система видеонаблюдения, охрана. Отличный доступ как общественным (м. Бауманская и Электрозаводская - 12 м. пешком или 4 остановки на автобусе), так и личным автотранспортом (800м от ТТК). По договоренности возможен расширенный режим работы.
lock

Войдите или зарегистрируйтесь
для просмотра информации

Просматривайте условия сделки и всю информацию об объекте
Сохраняйте фильтры в поиске и не вводите заново
Доступ к избранному с любого устройства
Неограниченное добавление в избранное
Позвоните автору
Вам ответят на все вопросы
Остались вопросы по объявлению?
Позвоните владельцу объявления и уточните необходимую информацию.
  • Инфраструктура
  • Похожие рядом
Помощь надёжных риелторов
Риелтор партнёр Циан поможет купить или продать любую недвижимость
Отдел арендыID 7305461
  • Документы проверены
  • 10 лет 11 месяцев на Циане
  • 7 объявлений
  • 305 009 ₽/мес.

    Прямая аренда (от года), минимальный срок аренды 11 месяцев, предоплата за 1 месяц

    4 000 $/мес.
    3 422 /мес.
    Цена за метр
    17 000 ₽ в год
    Налог
    НДС включен: 54 992 ₽
    Комиссия
    нет
    Коммунальные платежи
    включены
    Эксплуатационные расходы
    не включены
    Отдел арендыID 7305461
    Документы проверены