Мы используем куки-файлы. Соглашение об использовании
Площадь80 м²
Этаж2 из 22
КлассA
Отчёт о привлекательности объектаУзнайте, насколько помещение и район подходят для вашего бизнеса
Что входит в отчёт
  • Охват населения
  • Пешеходный трафик
  • Автомобильный трафик
  • Средний бюджет семьи по району
  • Арендные ставки рядом
  • Точки притяжения
  • Конкуренты в радиусе 1 км
  • Рекомендации по выбору места для бизнеса
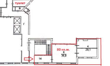
Сдается в аренду Офис по адресу: Москва, ул., Студенецкий переулок, дом 3 Площадь: 80 м2 Арендная ставка: 240 000 р. в месяц. Система налогообложения: УСН Готовность: готово к въезду Этаж: 2 Планировка-кабинетная (2 кабинета) Наличие с/у-на этом же этаже; Налоговая: 3; Предоставление юр.адреса - при встрече обсуждается; Парковка: Платная открытая/в ЦМТ Метро 1905 года- 7 минут пешком; Москва-Сити -20 минут пешком; Краснопресненский парк- 1 минута пешком В арендную ставку включено: эксплуатационные расходы. Налогообложение: УСН. Условия договора: 11 месяцев, обеспечительный 1 месяц, КУ не включены в стоимость. Здание работает: круглосуточно, без выходных. Вход в здание: - по карточкам. Интернет провайдеры: МГТС/Билайн/Ростелеком и т.д.. Просмотр офиса по договорённости. Подписание договора аренды напрямую с владельцем помещения. Для вас наши услуги абсолютно бесплатны.
lock

Войдите или зарегистрируйтесь
для просмотра информации

Просматривайте условия сделки и всю информацию об объекте
Сохраняйте фильтры в поиске и не вводите заново
Доступ к избранному с любого устройства
Неограниченное добавление в избранное
Позвоните автору
Вам ответят на все вопросы
Остались вопросы по объявлению?
Позвоните владельцу объявления и уточните необходимую информацию.
  • Инфраструктура
  • Похожие рядом
  • Общая площадь80 м²
Естественная вентиляция
Местное кондиционирование
Центральное отопление
Гидрантная система пожаротушения
Помощь надёжных риелторов
Риелтор партнёр Циан поможет купить или продать любую недвижимость
220 000 ₽/мес.

Прямая аренда (от года), минимальный срок аренды 11 месяцев, доступны арендные каникулы, обеспечительный платёж 220000 ₽, предоплата за 1 месяц

3 008 $/мес.
2 583 /мес.
Цена за метр
33 000 ₽ в год
Налог
УСН
Комиссия
нет
Коммунальные платежи
не включены
Эксплуатационные расходы
включены
Агентство недвижимости
Документы проверены