Мы используем куки-файлы. Соглашение об использовании
Помещение свободного назначения, 253 м²

Сдается помещение свободного назначения, 253 м²

    Площадь253 м²
    Этаж1 из 5
    Отчёт о привлекательности объектаУзнайте, насколько помещение и район подходят для вашего бизнеса
    Что входит в отчёт
    • Охват населения
    • Пешеходный трафик
    • Автомобильный трафик
    • Средний бюджет семьи по району
    • Арендные ставки рядом
    • Точки притяжения
    • Конкуренты в радиусе 1 км
    • Рекомендации по выбору места для бизнеса
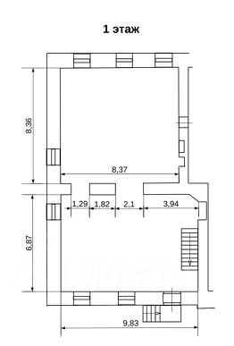
    Сдается нежилое помещение свободного назначения 253 кв.м., 1 этаж/подвал, окна по периметру, свободная планировка, несколько санузлов, высокие потолки, отдельный вход с Петровского пер. Мощность 35 кВт. Состояние помещения - неоконченная черновая отделка. Ставка аренды - 800 000 руб./мес., УСН, коммунальные платежи дополнительно.
    lock

    Войдите или зарегистрируйтесь
    для просмотра информации

    Просматривайте условия сделки и всю информацию об объекте
    Сохраняйте фильтры в поиске и не вводите заново
    Доступ к избранному с любого устройства
    Неограниченное добавление в избранное
    Позвоните автору
    Вам ответят на все вопросы
    Остались вопросы по объявлению?
    Позвоните владельцу объявления и уточните необходимую информацию.
    • Инфраструктура
    • Похожие рядом
    • Тип зданияЖилой дом
    • Площадь участка0 га
    • Общая площадь253 м²
    • Статус участкаВ собственности
    Центральное отопление
    Помощь надёжных риелторов
    Риелтор партнёр Циан поможет купить или продать любую недвижимость
    СобственникID 140476837
      800 000 ₽/мес.

      Прямая аренда (от года), предоплата за 1 месяц

      11 235 $/мес.
      9 692 /мес.
      Цена за метр
      37 945 ₽ в год
      Налог
      УСН
      Комиссия
      нет
      Коммунальные платежи
      не включены
      Эксплуатационные расходы
      не включены
      СобственникID 140476837