Мы используем куки-файлы. Соглашение об использовании
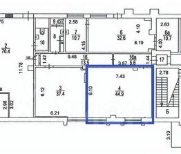
Площадь44,9 м²
Этаж1 из 4
ПомещениеСвободно
КлассC
Отчёт о привлекательности объектаУзнайте, насколько помещение и район подходят для вашего бизнеса
Что входит в отчёт
  • Охват населения
  • Пешеходный трафик
  • Автомобильный трафик
  • Средний бюджет семьи по району
  • Арендные ставки рядом
  • Точки притяжения
  • Конкуренты в радиусе 1 км
  • Рекомендации по выбору места для бизнеса
Предлагается в аренду офисное помещение 44,9 кв.м., 1-й этаж административного здания. Производственно-складской комплекс "ПКСМ", ул. Плеханова, д.9 Первая линия домов. Шаговая доступность от метро Шоссе Энтузиастов. Свободная планировка. В офис подведена вода. График работы с 8-00 до 21-00. Обеспечительный платёж равен арендной плате за два месяца. Парковка городская перед зданием, на территории предприятия парковка одного машиноместа 8800 руб. в месяц В арендную ставку включен НДС, отдельно оплачиваются коммунальные услуги. Лот PN-348
lock

Войдите или зарегистрируйтесь
для просмотра информации

Просматривайте условия сделки и всю информацию об объекте
Сохраняйте фильтры в поиске и не вводите заново
Доступ к избранному с любого устройства
Неограниченное добавление в избранное
Позвоните автору
Вам ответят на все вопросы
Остались вопросы по объявлению?
Позвоните владельцу объявления и уточните необходимую информацию.
  • Инфраструктура
  • Похожие рядом
Помощь надёжных риелторов
Риелтор партнёр Циан поможет купить или продать любую недвижимость
Управляющая компанияПрофис-недвижимость
Суперагент
  • 14 лет 8 месяцев на Циане
  • 285 объявлений
  • 56 125 ₽/мес.
    752 $/мес.
    639 /мес.
    Цена за метр
    15 000 ₽ в год
    Налог
    НДС включен: 10 118 ₽
    Комиссия
    нет
    Коммунальные платежи
    не включены
    Эксплуатационные расходы
    включены
    Управляющая компанияПрофис-недвижимость
    Суперагент