Мы используем куки-файлы. Соглашение об использовании
Площади21 – 77 м²
Этаж4 из 4
ПомещениеСвободно
КлассB
Отчёт о привлекательности объектаУзнайте, насколько помещение и район подходят для вашего бизнеса
Что входит в отчёт
  • Охват населения
  • Пешеходный трафик
  • Автомобильный трафик
  • Средний бюджет семьи по району
  • Арендные ставки рядом
  • Точки притяжения
  • Конкуренты в радиусе 1 км
  • Рекомендации по выбору места для бизнеса
Доступно 3 площади
21 м²
4 этаж
34 650 ₽/мес.
19 800 ₽/м² в год
45 м²
4 этаж
74 250 ₽/мес.
19 800 ₽/м² в год
77 м²
4 этаж
127 050 ₽/мес.
19 800 ₽/м² в год
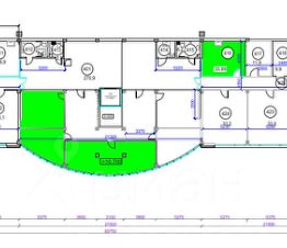
Предлагаем в аренду от собственника офисное помещение в районе станции метро Новопеределкино, общая площадь 133 кв.м. - возможна аренда отдельных кабинетов (на схеме: кабинет 416 - 21 кв.м., кабинет 419 - 45 кв.м., кабинет с панорамными окнами - 77 кв.м.) - Стоимость арендной платы - 1650 руб/м2 - Договор аренды от 11 месяцев - Прямая аренда от собственника - Офисное помещение свободно и готово к размещению - Платежи первый месяц + страховой депозит - Комиссия 100% - Коммунальные платежи не входят в стоимость - Эксплуатационные платежи - входят в стоимость - Юридический адрес - предоставляется по необходимости Видео помещения по запросу. Ключи на руках, Показ по предварительной договоренности.
lock

Войдите или зарегистрируйтесь
для просмотра информации

Просматривайте условия сделки и всю информацию об объекте
Сохраняйте фильтры в поиске и не вводите заново
Доступ к избранному с любого устройства
Неограниченное добавление в избранное
Позвоните автору
Вам ответят на все вопросы
Остались вопросы по объявлению?
Позвоните владельцу объявления и уточните необходимую информацию.
  • Инфраструктура
  • Похожие рядом
Помощь надёжных риелторов
Риелтор партнёр Циан поможет купить или продать любую недвижимость
Автор объявленияЕкатерина Савельева
  • Документы проверены
  • Менее 1 месяца на Циане
  • 5 объявлений
  • 34 650 – 127 050 ₽/мес.

    Прямая аренда (от года), минимальный срок аренды 11 месяцев, обеспечительный платёж 1650 ₽, предоплата за 1 месяц

    от 462 до 1 694 $/мес.
    от 399 до 1 463 €/мес.
    Цена за метр
    от 19 800 ₽ в год
    Налог
    НДС включен: 22 910 ₽
    Комиссия
    100%
    Коммунальные платежи
    не включены
    Эксплуатационные расходы
    включены
    Автор объявленияЕкатерина Савельева
    Документы проверены