Мы используем куки-файлы. Соглашение об использовании
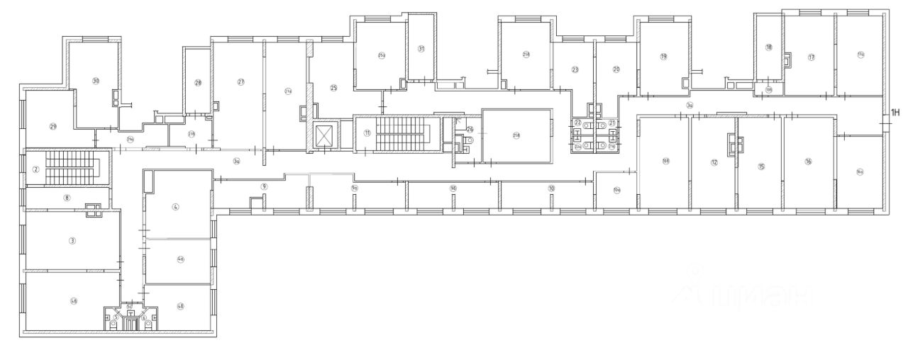
Площади11,3 – 190 м²
Этаж2 из 18
ПомещениеСвободно
КлассB
Отчёт о привлекательности объектаУзнайте, насколько помещение и район подходят для вашего бизнеса
Что входит в отчёт
  • Охват населения
  • Пешеходный трафик
  • Автомобильный трафик
  • Средний бюджет семьи по району
  • Арендные ставки рядом
  • Точки притяжения
  • Конкуренты в радиусе 1 км
  • Рекомендации по выбору места для бизнеса
Доступно 6 площадей
11,3 м²
2 этаж
25 000 ₽/мес.
26 548 ₽/м² в год
13,4 м²
2 этаж
30 000 ₽/мес.
26 865 ₽/м² в год
21 м²
2 этаж
41 000 ₽/мес.
23 428 ₽/м² в год
22,2 м²
2 этаж
42 000 ₽/мес.
22 702 ₽/м² в год
85 м²
2 этаж
140 000 ₽/мес.
19 764 ₽/м² в год
Предлагаются офисные помещения на 2-м этаже нового многоквартирного дома. ВСЕГО 31 ОТДЕЛЬНЫЙ КАБИНЕТ В наличии разные площади от 11 метров. Возможно взять весь этаж - 713 кв.м. Типовая офисная отделка, кабинетная планировка, частичная меблировка, функционирующие санузлы - все это уже доступно арендатору Есть подготовка для местного кондиционирования. Осуществляется регулярная уборка и управление помещением. Круглосуточное видеонаблюдение. Возможен доступ 24/7. Возможна реклама и собственные вывески на окнах Прямая аренда от собственника. Коммунальные платежи отдельно. Долгосрочный договор. Показы возможны в любое время
lock

Войдите или зарегистрируйтесь
для просмотра информации

Просматривайте условия сделки и всю информацию об объекте
Сохраняйте фильтры в поиске и не вводите заново
Доступ к избранному с любого устройства
Неограниченное добавление в избранное
Позвоните автору
Вам ответят на все вопросы
Остались вопросы по объявлению?
Позвоните владельцу объявления и уточните необходимую информацию.
  • Инфраструктура
  • Похожие рядом
  • Общая площадь190 м²
Естественная вентиляция
Местное кондиционирование
Центральное отопление
Сигнализация
Помощь надёжных риелторов
Риелтор партнёр Циан поможет купить или продать любую недвижимость
25 000 – 340 000 ₽/мес.

Прямая аренда (от года), минимальный срок аренды 12 месяцев, доступны арендные каникулы, предоплата за 1 месяц

от 271 до 4 560 $/мес.
от 226 до 3 800 €/мес.
Цена за метр
от 19 765 ₽ в год
Налог
УСН
Комиссия
нет
Коммунальные платежи
не включены
Эксплуатационные расходы
не включены
Агентство недвижимости
Суперагент