Мы используем куки-файлы. Соглашение об использовании
Площадь4 114 м²
Этаж4 из 9
Парковка430 мест
ПомещениеСвободно
КлассB+
Отчёт о привлекательности объектаУзнайте, насколько помещение и район подходят для вашего бизнеса
Что входит в отчёт
  • Охват населения
  • Пешеходный трафик
  • Автомобильный трафик
  • Средний бюджет семьи по району
  • Арендные ставки рядом
  • Точки притяжения
  • Конкуренты в радиусе 1 км
  • Рекомендации по выбору места для бизнеса
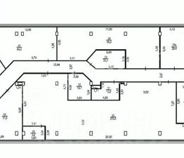
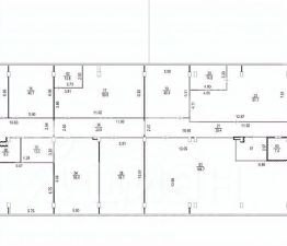
Лот 1074842 Предложение от Собственника! Аренда офиса 4114м2 в СЗАО, в деловом центр класса B "Диапазон". Ближайшее метро\МЦД Октябрьское поле\Панфиловская до 10 минут пешком. Деловой центр "Диапазон" это 46000 м² офисных и сопутствующих площадей на нескольких гектарах территории. Современные инженерные системы — приточно-вытяжная вентиляция, центральное кондиционирование, система пожарной безопасности. Профессиональная управляющая компания - центральный ресепшн, круглосуточная охрана, системы видеонаблюдения и пропуска. Развитая инфраструктура - не выходя из делового центра доступны кафе - Prime Cafe, столовая — Жираф, мини-маркет, салон красоты, банкомат, фитнес. Предлагаемое помещение занимает 4 и 5 этажи целиком. Планировка смешанная. Высота потолков 3+ метра. Видовой этаж. Возможна аренда машиномест на территории БЦ. Звоните, показ в удобное время по предварительной договоренности. В цену включено: НДС 22%. В цену не включено: затраты на электричество, уборка. Обеспечительный платеж 2 месяцa. Чтобы получить ПОДРОБНУЮ ПРЕЗЕНТАЦИЮ С ПЛАНИРОВКОЙ И ФОТОГРАФИЯМИ, звоните или отправьте свой email и номер телефона в сообщении на портале. Высылаем в течение 15 минут по запросу! Конт. лицо: Филипп , доб. 261, ЛОТ 1074842
lock

Войдите или зарегистрируйтесь
для просмотра информации

Просматривайте условия сделки и всю информацию об объекте
Сохраняйте фильтры в поиске и не вводите заново
Доступ к избранному с любого устройства
Неограниченное добавление в избранное
Позвоните автору
Вам ответят на все вопросы
Остались вопросы по объявлению?
Позвоните владельцу объявления и уточните необходимую информацию.
  • Инфраструктура
  • Похожие рядом
Помощь надёжных риелторов
Риелтор партнёр Циан поможет купить или продать любую недвижимость
10 874 674 ₽/мес.

Прямая аренда (от года), обеспечительный платёж 21749346 ₽

143 365 $/мес.
121 837 /мес.
Цена за метр
31 720 ₽ в год
Налог
НДС включен: 1 961 007 ₽
Комиссия
нет
Коммунальные платежи
не включены
Эксплуатационные расходы
включены
Агентство недвижимости
На Циан
17 лет
Объектов в работе
более 5000
Риелтор
Суперагент
5,0・1