Мы используем куки-файлы. Соглашение об использовании
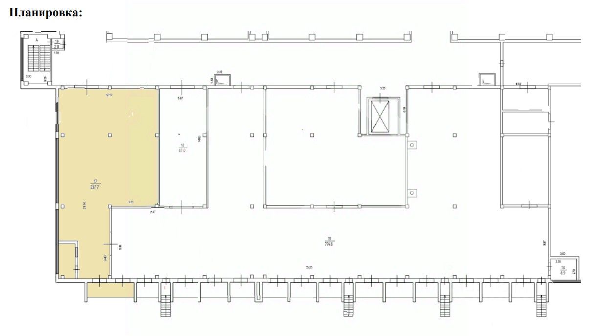
Площадь160 м²
Этаж1 из 2
Выс. потолков5.5 м.
ПомещениеСвободно
Отчёт о привлекательности объектаУзнайте, насколько помещение и район подходят для вашего бизнеса
Что входит в отчёт
  • Охват населения
  • Пешеходный трафик
  • Автомобильный трафик
  • Средний бюджет семьи по району
  • Арендные ставки рядом
  • Точки притяжения
  • Конкуренты в радиусе 1 км
  • Рекомендации по выбору места для бизнеса
1151628. Предлагается складское помещение общей площадью 160 кв. м. в СВАО, р-н Отрадное. 1 этаж ОСЗ. Преимущества: Первая линия, пересечение Сигнального проезда и СВХ. 5 минут пешком от ст. "Владыкино". Удобная транспортная доступность: выезд на Алтуфьевское шоссе (2 км), МКАД (8 км), ТТК (9 км). Напротив остановка общественного транспорта. Сухой склад Оборудован стеллажами. Закрытая, охраняемая территория. Доступ 24/7. Док для фуры и операторской. Парковка. Технические характеристики: Общая площадь: 160 кв. м. Рабочая высота: 5,5 м. Нагрузка на пол: 5 т/кв. м. Электрическая мощность: 50 кВт.
lock

Войдите или зарегистрируйтесь
для просмотра информации

Просматривайте условия сделки и всю информацию об объекте
Сохраняйте фильтры в поиске и не вводите заново
Доступ к избранному с любого устройства
Неограниченное добавление в избранное
Позвоните автору
Вам ответят на все вопросы
Остались вопросы по объявлению?
Позвоните владельцу объявления и уточните необходимую информацию.
  • Инфраструктура
  • Похожие рядом
  • Тип зданияПроизводственно-складской комплекс
  • Категория зданияДействующее
  • Общая площадь160 м²
Помощь надёжных риелторов
Риелтор партнёр Циан поможет купить или продать любую недвижимость
240 000 ₽/мес.

Субаренда (от года), предоплата за 1 месяц

3 190 $/мес.
2 716 /мес.
Цена за метр
18 000 ₽ в год
Налог
НДС включен: 43 278 ₽
Комиссия
50%
Коммунальные платежи
включены
Эксплуатационные расходы
включены
Агентство недвижимости
Документы проверены