Мы используем куки-файлы. Соглашение об использовании
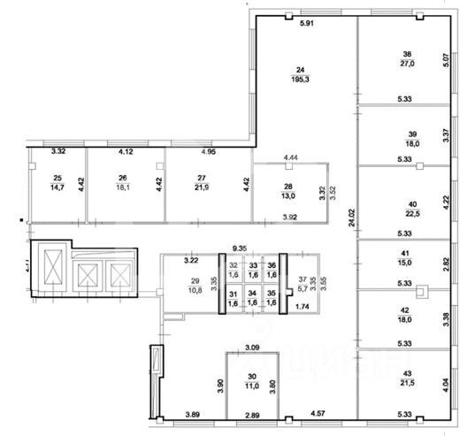
Помещение свободного назначения, 485,3 м²

Сдается помещение свободного назначения (А)

Площадь485,3 м²
Этаж4 из 8
ПомещениеСвободно с июня 2026
КлассA
Отчёт о привлекательности объектаУзнайте, насколько помещение и район подходят для вашего бизнеса
Что входит в отчёт
  • Охват населения
  • Пешеходный трафик
  • Автомобильный трафик
  • Средний бюджет семьи по району
  • Арендные ставки рядом
  • Точки притяжения
  • Конкуренты в радиусе 1 км
  • Рекомендации по выбору места для бизнеса
1156367. Предлагаем в аренду офисное помещение площадью 485,3 кв. м, расположенное в бизнес-центре "Бульварное кольцо" Преимущества объекта: - Бизнес-центр класса А - Шаговая доступность от станции метро Чистые пруды (7 минут пешком) - Этаж: 4 - Помещение предлагается с отделкой - Планировка кабинетная - Помещение свободно с июня 2026 года - Количество машиномест на парковке: 3 - Высота потолков 3 м. Эксплуатационные платежи включены в ставку, коммунальные платежи оплачиваются дополнительно. Оперативно организуем для Вас показ и ответим на все вопросы. Свяжитесь с нами для получения дополнительной информации!
lock

Войдите или зарегистрируйтесь
для просмотра информации

Просматривайте условия сделки и всю информацию об объекте
Сохраняйте фильтры в поиске и не вводите заново
Доступ к избранному с любого устройства
Неограниченное добавление в избранное
Позвоните автору
Вам ответят на все вопросы
Остались вопросы по объявлению?
Позвоните владельцу объявления и уточните необходимую информацию.
  • Инфраструктура
  • Похожие рядом
Помощь надёжных риелторов
Риелтор партнёр Циан поможет купить или продать любую недвижимость
2 910 991 ₽/мес.

Прямая аренда (от года), предоплата за 1 месяц

38 276 $/мес.
32 479 /мес.
Цена за метр
71 980 ₽ в год
Налог
НДС включен: 524 932 ₽
Комиссия
нет
Коммунальные платежи
не включены
Эксплуатационные расходы
включены
Агентство недвижимости
Документы проверены