Мы используем куки-файлы. Соглашение об использовании

Сдается офис (B)

Снизили ставку

Площади266,3 – 556,2 м²
Этаж3 из 4
КлассB
Отчёт о привлекательности объектаУзнайте, насколько помещение и район подходят для вашего бизнеса
Что входит в отчёт
  • Охват населения
  • Пешеходный трафик
  • Автомобильный трафик
  • Средний бюджет семьи по району
  • Арендные ставки рядом
  • Точки притяжения
  • Конкуренты в радиусе 1 км
  • Рекомендации по выбору места для бизнеса
Доступно 3 площади
266,3 м²
3 этаж
1 553 416 ₽/мес.
70 000 ₽/м² в год
289,9 м²
4 этаж
1 691 083 ₽/мес.
70 000 ₽/м² в год
556,2 м²
3 и 4 этаж
3 244 500 ₽/мес.
70 000 ₽/м² в год
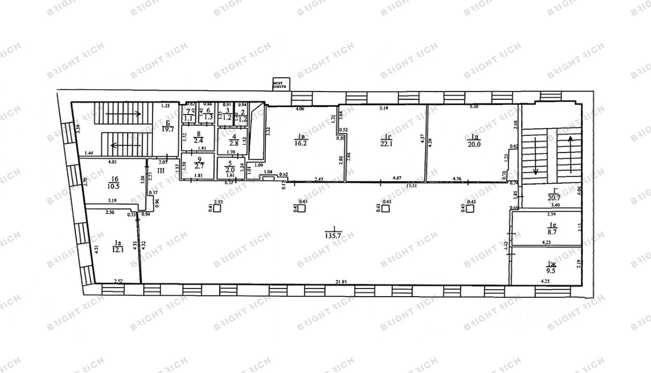
Аренда готового офиса с мебелью в особняке по адресу: ул. Большая Полянка, 2с2. Офис площадью 556,2 м² расположен на 3 и 4 этажах, последний из которых — мансардный. Возможно деление по этажам: 266,3 и 289,9 м². Помещение полностью готово к работе — можно заехать сразу, без дополнительных вложений. ПРЕИМУЩЕСТВА: • качественная отделка, офис полностью меблирован; • отдельные этажи, гибкие функциональные планировки, с/у на каждом этаже; • 6 минут пешком до метро Полянка, 10 минут до Третьяковской; • подземный паркинг; • развитая инфраструктура: Кофемания, рестораны, магазины, парки. ФИН.УСЛОВИЯ: • арендная ставка !70 000 ₽/м²/год!, в ставку включены НДС, ОРЕХ; • субренда без комиссии для клиента. Готовы оперативно организовать просмотр в удобное время и предоставить PDF-презентацию, план, а также видеотур по запросу.
lock

Войдите или зарегистрируйтесь
для просмотра информации

Просматривайте условия сделки и всю информацию об объекте
Сохраняйте фильтры в поиске и не вводите заново
Доступ к избранному с любого устройства
Неограниченное добавление в избранное
Позвоните автору
Вам ответят на все вопросы
Остались вопросы по объявлению?
Позвоните владельцу объявления и уточните необходимую информацию.
  • Инфраструктура
  • Похожие рядом
  • Тип зданияОсобняк
  • Площадь участка0 га
  • Общая площадь1 960 м²
  • Статус участкаВ собственности
Приточная вентиляция
Местное кондиционирование
Помощь надёжных риелторов
Риелтор партнёр Циан поможет купить или продать любую недвижимость
РиелторBright Rich Moscow
Суперагент
1 553 417 – 3 244 500 ₽/мес.

Субаренда (от года), предоплата за 1 месяц

от 20 771 до 43 384 $/мес.
от 17 842 до 37 265 €/мес.
Цена за метр
от 70 000 ₽ в год
Налог
НДС включен: 585 073 ₽
Комиссия
нет
Коммунальные платежи
не включены
Эксплуатационные расходы
включены
Агентство недвижимости
На Циан
12 лет
Объектов в работе
более 1000