Мы используем куки-файлы. Соглашение об использовании
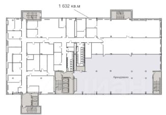
Площадь1 632 м²
Этаж4 из 6
Парковка50 мест
ПомещениеСвободно
Отчёт о привлекательности объектаУзнайте, насколько помещение и район подходят для вашего бизнеса
Что входит в отчёт
  • Охват населения
  • Пешеходный трафик
  • Автомобильный трафик
  • Средний бюджет семьи по району
  • Арендные ставки рядом
  • Точки притяжения
  • Конкуренты в радиусе 1 км
  • Рекомендации по выбору места для бизнеса
Аренда современного офиса с качественной отделкой и панорамным остеклением. Помещение расположено в бизнес-центре "Квадрат", вблизи МКАД и Можайского шоссе. Здание оснащено приточно-вытяжной вентиляцией и центральным кондиционированием, охраной с видеонаблюдением и контролем доступа, сплинкерной системой пожаротушения. Наземная парковка рассчитана на 110 м/мест. Парковочный коэффициент 1м/м на 60 кв. м. На территории имеется все необходимая инфраструктура. Ставка аренды составляет 42 996 руб. за м2 в год., включая НДС и эксплуатационные расходы. Звоните и мы ответим на все интересующие Вас вопросы!
lock

Войдите или зарегистрируйтесь
для просмотра информации

Просматривайте условия сделки и всю информацию об объекте
Сохраняйте фильтры в поиске и не вводите заново
Доступ к избранному с любого устройства
Неограниченное добавление в избранное
Позвоните автору
Вам ответят на все вопросы
Остались вопросы по объявлению?
Позвоните владельцу объявления и уточните необходимую информацию.
  • Инфраструктура
  • Похожие рядом
Помощь надёжных риелторов
Риелтор партнёр Циан поможет купить или продать любую недвижимость
РиелторCommonwealth Partnership
Документы проверены
5 847 456 ₽/мес.

Прямая аренда (от года), предоплата за 2 месяца

77 723 $/мес.
65 901 /мес.
Цена за метр
42 996 ₽ в год
Налог
НДС включен: 1 054 408 ₽
Комиссия
нет
Коммунальные платежи
не включены
Эксплуатационные расходы
включены
Агентство недвижимости
Документы проверены
На Циан
7 лет
Объектов в работе
46