Мы используем куки-файлы. Соглашение об использовании
Площадь763 м²
Этаж20 из 38
КлассA
Отчёт о привлекательности объектаУзнайте, насколько помещение и район подходят для вашего бизнеса
Что входит в отчёт
  • Охват населения
  • Пешеходный трафик
  • Автомобильный трафик
  • Средний бюджет семьи по району
  • Арендные ставки рядом
  • Точки притяжения
  • Конкуренты в радиусе 1 км
  • Рекомендации по выбору места для бизнеса
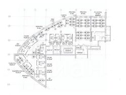
Сдается в аренду офисное помещение на 20 этаже в МФК Монарх, А класса, который находится по адресу: Ленинградский пр-кт, д. 31А, стр. 1. Без комиссии для Арендатора! ЛОКАЦИЯ: Пешая доступность от станций метро Динамо, Петровский парк, Беговая. Удобный выезд на Ленинградский проспект, ТТК. ПОМЕЩЕНИЕ: В помещении выполнена офисная отделка, смешанная планировка. Центральная система кондиционирования, приточно-вытяжная система вентиляции. В наличии подземная и наземная парковки (24 600 и 8 000 руб. в месяц за м/место соответственно). Арендные каникулы и ставка подлежат обсуждению. Звоните, отвечаем по будням с 09:00 до 18:00, а в другое время передадим Ваш контакт нашему менеджеру!
lock

Войдите или зарегистрируйтесь
для просмотра информации

Просматривайте условия сделки и всю информацию об объекте
Сохраняйте фильтры в поиске и не вводите заново
Доступ к избранному с любого устройства
Неограниченное добавление в избранное
Позвоните автору
Вам ответят на все вопросы
Остались вопросы по объявлению?
Позвоните владельцу объявления и уточните необходимую информацию.
  • Инфраструктура
  • Похожие рядом
Помощь надёжных риелторов
Риелтор партнёр Циан поможет купить или продать любую недвижимость
3 942 166 ₽/мес.

Прямая аренда (от года)

52 777 $/мес.
45 006 /мес.
Цена за метр
62 000 ₽ в год
Налог
НДС включен: 710 882 ₽
Комиссия
нет
Коммунальные платежи
не включены
Эксплуатационные расходы
включены
Агентство недвижимости
Документы проверены