Мы используем куки-файлы. Соглашение об использовании

Сдается офис (B)

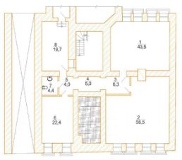
Площадь161,8 м²
Этаж-1 из 5
ПомещениеСвободно
КлассB
Отчёт о привлекательности объектаУзнайте, насколько помещение и район подходят для вашего бизнеса
Что входит в отчёт
  • Охват населения
  • Пешеходный трафик
  • Автомобильный трафик
  • Средний бюджет семьи по району
  • Арендные ставки рядом
  • Точки притяжения
  • Конкуренты в радиусе 1 км
  • Рекомендации по выбору места для бизнеса
В аренду предлагается офис с отдельным входом в самом центре Москвы БЕЗ КОМИССИИ!! Находится в цокольном этаже 5-этажного клубного жилого дома. Удобная продуманная планировка: три просторных кабинета, собственный санузел. Отдельный вход со двора здания. В офисе выполнена качественная отделка с применением дорогих материалов. В каждом помещении окна. Здание расположено в самом центре Москвы, в Кремлевской зоне, между Бульварным и Садовым кольцом в шаговой доступности от 3 станций метро: Смоленская, Кропоткинская и Арбатская. Удобные выезды на Садовое кольцо, улицу Остоженка, ул. Пречистенка, Пречистенскую набережную, ул. Волхонка, Гоголевский бульвар. Система вентиляции и кондиционирования, видеонаблюдение, охранно-пожарная сигнализация. Предоставляется юр. адрес. Ставка аренды 40 000 руб/м2/год, включая ОРЕХ. Налогообложение: УСН + 5% НДС Не включены коммунальные платежи. Звоните, мы оперативно организуем просмотр помещения в комфортное для вас время и ответим на все интересующие вопросы!
lock

Войдите или зарегистрируйтесь
для просмотра информации

Просматривайте условия сделки и всю информацию об объекте
Сохраняйте фильтры в поиске и не вводите заново
Доступ к избранному с любого устройства
Неограниченное добавление в избранное
Позвоните автору
Вам ответят на все вопросы
Остались вопросы по объявлению?
Позвоните владельцу объявления и уточните необходимую информацию.
  • Инфраструктура
  • Похожие рядом
  • Общая площадь161,8 м²
Приточная вентиляция
Центральное кондиционирование
Центральное отопление
Спринклерная система пожаротушения
Помощь надёжных риелторов
Риелтор партнёр Циан поможет купить или продать любую недвижимость
539 334 ₽/мес.

Прямая аренда (от года), минимальный срок аренды 11 месяцев, предоплата за 1 месяц

7 088 $/мес.
6 032 /мес.
Цена за метр
40 000 ₽ в год
Налог
УСН
Комиссия
нет
Коммунальные платежи
не включены
Эксплуатационные расходы
включены
Документы проверены