Мы используем куки-файлы. Соглашение об использовании
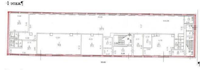
Площадь500 м²
Этаж1 из 4
ПомещениеСвободно
Отчёт о привлекательности объектаУзнайте, насколько помещение и район подходят для вашего бизнеса
Что входит в отчёт
  • Охват населения
  • Пешеходный трафик
  • Автомобильный трафик
  • Средний бюджет семьи по району
  • Арендные ставки рядом
  • Точки притяжения
  • Конкуренты в радиусе 1 км
  • Рекомендации по выбору места для бизнеса
ВАЖНО: БЕЗ КОММИССИ ДЛЯ АРЕНДАТОРОВ, ПРЯМАЯ АРЕНДА ОТ СОБСТВЕННИКА Офисный парк B+ класса Дельта Порт расположен по адресу Москва, ЮВАО, район Печатники, 2-й Южнопортовый пр., 33с1, в пешей доступности от метро Кожуховская (9 мин). Характеристики здания: 4 этажа, офисный парк расположен на первой линии, техническое оснащение и управление климатом по требованиям B+ класса, 23 налоговая. Офисный парк оснащен пассажирским, грузовым лифтами. Есть ресепшен, контроль доступа в здание, контроль доступа в офисный блок, наземный паркинг. Предлагаем к аренде офис 500 м² на 1 этаже. Обратитесь за спецусловиями на аренду!
lock

Войдите или зарегистрируйтесь
для просмотра информации

Просматривайте условия сделки и всю информацию об объекте
Сохраняйте фильтры в поиске и не вводите заново
Доступ к избранному с любого устройства
Неограниченное добавление в избранное
Позвоните автору
Вам ответят на все вопросы
Остались вопросы по объявлению?
Позвоните владельцу объявления и уточните необходимую информацию.
  • Инфраструктура
  • Похожие рядом
Помощь надёжных риелторов
Риелтор партнёр Циан поможет купить или продать любую недвижимость
1 000 000 ₽/мес.

Прямая аренда (несколько месяцев), предоплата за 1 месяц

13 143 $/мес.
11 184 /мес.
Цена за метр
24 000 ₽ в год
Налог
НДС включен: 180 292 ₽
Комиссия
нет
Коммунальные платежи
не включены
Эксплуатационные расходы
включены
Агентство недвижимости
Суперагент
На Циан
12 лет
Объектов в работе
840