Мы используем куки-файлы. Соглашение об использовании
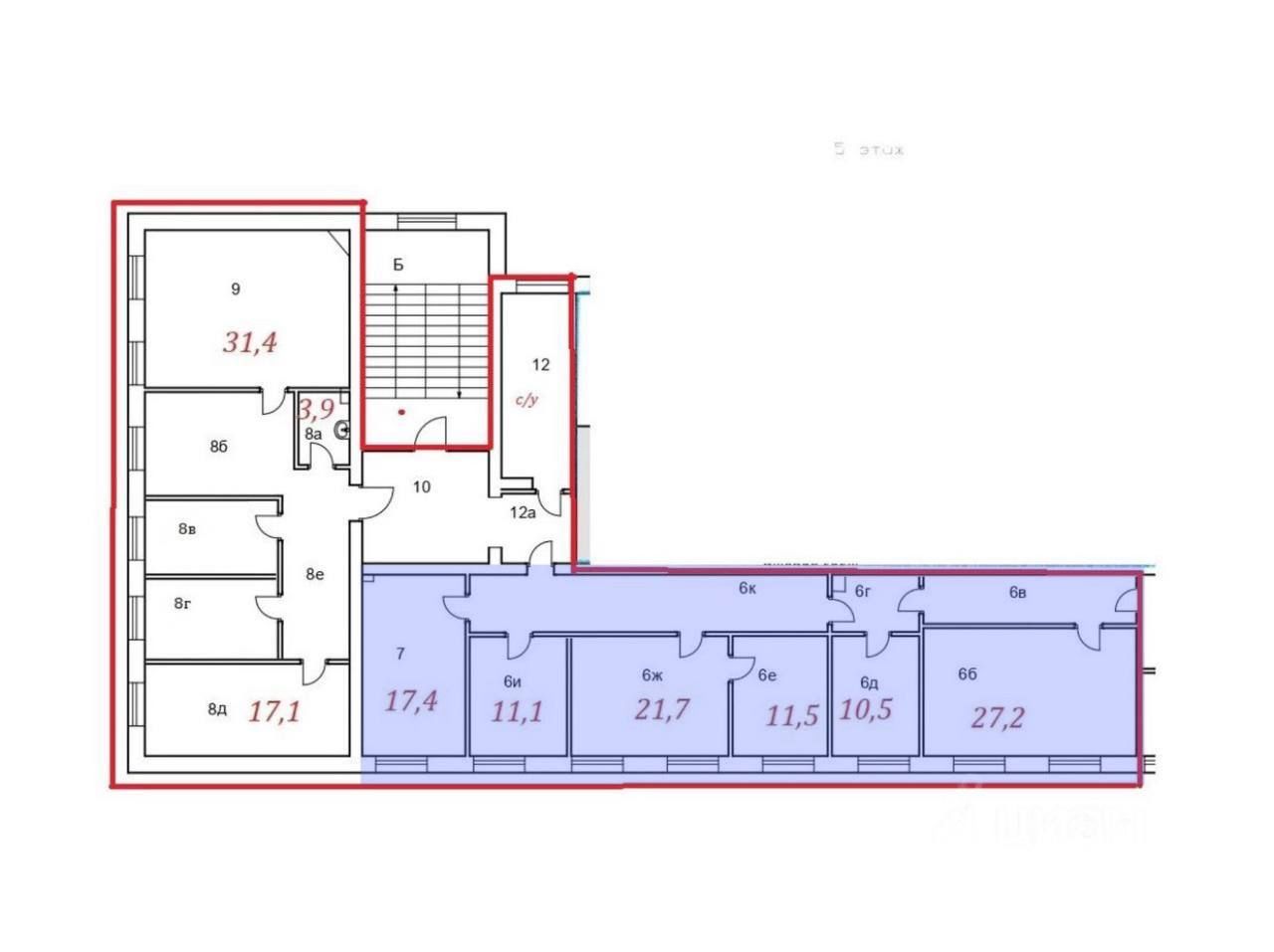
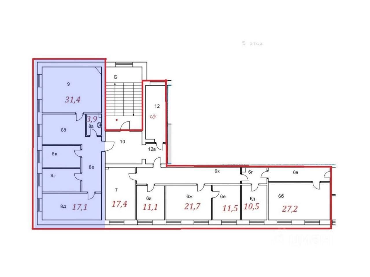
Площади101,2 – 129,2 м²
Этаж5 из 5
ПомещениеСвободно
Отчёт о привлекательности объектаУзнайте, насколько помещение и район подходят для вашего бизнеса
Что входит в отчёт
  • Охват населения
  • Пешеходный трафик
  • Автомобильный трафик
  • Средний бюджет семьи по району
  • Арендные ставки рядом
  • Точки притяжения
  • Конкуренты в радиусе 1 км
  • Рекомендации по выбору места для бизнеса
Доступно 2 площади
101,2 м²
5 этаж
261 300 ₽/мес.
30 984 ₽/м² в год
129,2 м²
5 этаж
332 300 ₽/мес.
30 863 ₽/м² в год
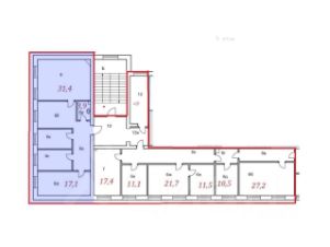
Сдается офисное помещение на 5 этаже Бизнес- центра, расположенного в шаговой доступности от станции метро Академическая. Площадь помещения 251,5 м2. Разбирается на два офиса с площадями 101,6 м2 и 129,2 м2. В помещении выполнена стандартная офисная отделка. Отдельный блок с кабинетной планировкой. Оборудована небольшая кухня, два санузла. Помещение очень теплое, оборудовано системой кондиционирования, вентиляцией и пожарной сигнализацией. Территория бизнес-центра охраняемая. На вход действует пропускной режим. За отдельную плату предоставляется до 12 парковочных мест. Возможна аренда части помещения, поскольку планировка позволяет разбить его на два отдельных блока. Коммунальные платежи включены в стоимость аренды. Возможность предоставления арендных каникул обсуждается.
lock

Войдите или зарегистрируйтесь
для просмотра информации

Просматривайте условия сделки и всю информацию об объекте
Сохраняйте фильтры в поиске и не вводите заново
Доступ к избранному с любого устройства
Неограниченное добавление в избранное
Позвоните автору
Вам ответят на все вопросы
Остались вопросы по объявлению?
Позвоните владельцу объявления и уточните необходимую информацию.
  • Инфраструктура
  • Похожие рядом
Помощь надёжных риелторов
Риелтор партнёр Циан поможет купить или продать любую недвижимость
Автор объявленияМарина Бабий
  • 3 года 7 месяцев на Циане
  • 1 объявление
  • 261 300 – 332 300 ₽/мес.

    Субаренда (от года), минимальный срок аренды 11 месяцев, доступны арендные каникулы, обеспечительный платёж 593500 ₽, предоплата за 1 месяц

    от 3 441 до 4 393 $/мес.
    от 2 935 до 3 747 €/мес.
    Цена за метр
    от 30 864 ₽ в год
    Налог
    НДС включен: 59 922 ₽
    Комиссия
    нет
    Коммунальные платежи
    включены
    Эксплуатационные расходы
    не включены
    Автор объявленияМарина Бабий