Мы используем куки-файлы.
Соглашение об использовании
Умный помощник
+ Разместить за 0 ₽
Войти
Аренда
Продажа
Новостройки
Дома и участки
Коммерческая
Ипотека
Мой дом
Сделка
Сервисы
Приложение Циан
Ещё
Ещё
Ещё
Фотографии (6)
Описание
Расположение
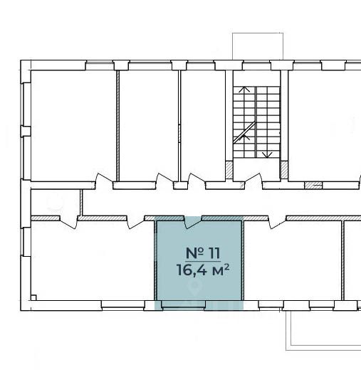
Офис, 16,4 м²
Недвижимость в Москве
Коммерческая
Аренда офисов в Москве
ЗАО
Фили-Давыдково
метро Филёвский парк
улица Герасима Курина
Обновлено: 21 апр, 04:16
29 просмотров, 5 за сегодня
Сдается офис, 16,4 м²
в
здании «на ул. Герасима Курина, 10к1»
Москва
,
ЗАО
,
р-н Фили-Давыдково
,
ул. Герасима Курина
,
10К1
На карте
Филёвский парк
10 мин.
Славянский бульвар
12 мин.
Пионерская
14 мин.
Скачать в PDF
Скачать в .docx
Пожаловаться
6 фото
Площадь
16,4 м²
Этаж
2 из 3
Парковка
30 мест
Помещение
Свободно
Отчёт о привлекательности объекта
Узнайте, насколько помещение и район подходят для вашего бизнеса
Что входит в отчёт
Охват населения
Пешеходный трафик
Автомобильный трафик
Средний бюджет семьи по району
Арендные ставки рядом
Точки притяжения
Конкуренты в радиусе 1 км
Рекомендации по выбору места для бизнеса
Помещение на втором этаже офисного здания. Огороженная охраняемая территория с наземной парковкой.
Войдите или зарегистрируйтесь
для просмотра информации
Войти
Просматривайте условия сделки и всю информацию об объекте
Сохраняйте фильтры в поиске и не вводите заново
Доступ к избранному с любого устройства
Неограниченное добавление в избранное
Позвоните автору
Вам ответят на все вопросы
Показать контакты
Остались вопросы по объявлению?
Позвоните владельцу объявления и уточните необходимую информацию.
Позвонить
Инфраструктура
Похожие рядом
Помощь надёжных риелторов
Риелтор партнёр Циан поможет купить или продать любую недвижимость
Оставить заявку
48 000 ₽/мес.
Прямая аренда (от года), предоплата за 1 месяц
644 $/мес.
547 €/мес.
Следить за изменением цены
Цена за метр
35 122 ₽ в год
Налог
НДС включен: 8 655 ₽
Комиссия
нет
Коммунальные платежи
не включены
Эксплуатационные расходы
не включены
Показать телефон
Агентство недвижимости
Конти
Суперагент