Мы используем куки-файлы. Соглашение об использовании
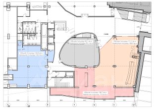
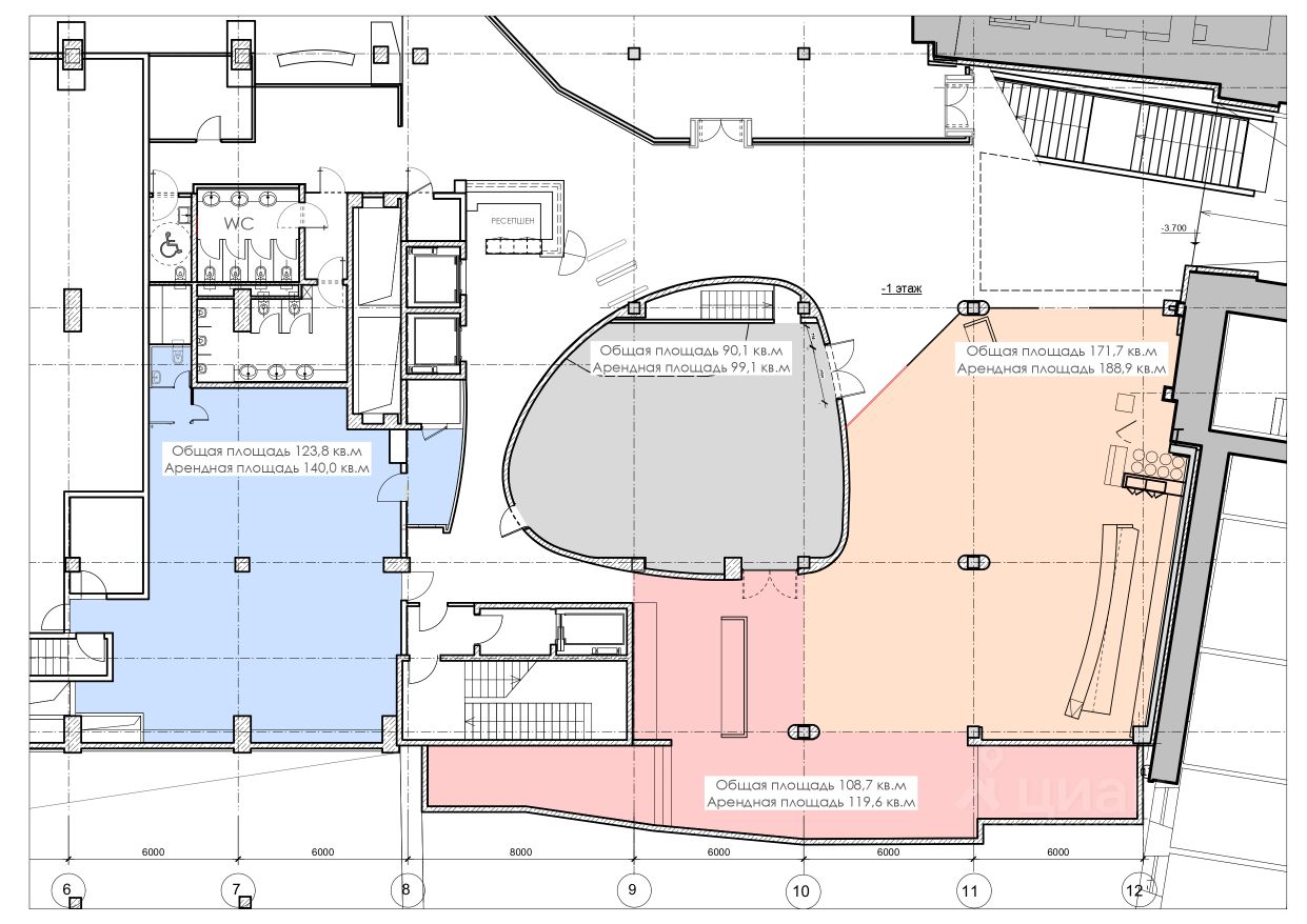
Помещение свободного назначения, 188,9 м²

Сдается помещение свободного назначения (А)

Площадь188,9 м²
Этаж1 из 8
ПомещениеСвободно
КлассA
Отчёт о привлекательности объектаУзнайте, насколько помещение и район подходят для вашего бизнеса
Что входит в отчёт
  • Охват населения
  • Пешеходный трафик
  • Автомобильный трафик
  • Средний бюджет семьи по району
  • Арендные ставки рядом
  • Точки притяжения
  • Конкуренты в радиусе 1 км
  • Рекомендации по выбору места для бизнеса
Свободное назначение (ПСН), 188,9 м². 1 этаж. Ключевые характеристики: Общая площадь: 188,9 кв. м. Этаж: 1, отдельный вход. Назначение: ПСН (под офис, торговлю, услуги, аптеку, шоу-рум, стоматологию, банк). Режим: Доступ 24/7, круглосуточная охрана. Парковка: собственный паркинг в Бизнес центре Локация — главное преимущество: Транспорт: 35 минут пешком от метро Библиотека им. Ленина Статус: входная группа с видом на Кремль. Прямая пешая доступность к туристическим маршрутам и деловым центрам. Трафик: Высокая проходимость за счет близости к центру притяжения. О помещении: Свободная планировка (возможна перепланировка под любой бизнес). Инженерные сети: электричество, водоснабжение, канализация, отопление Состояние: за выездом арендатора Высокие потолки. Отличная звукоизоляция и шумозащита. Идеально подходит для: Представительство / офис с высоким статусом/ клиентский офис. Премиальный шоу-рум / бутик. Аптека / оптика. Стоматология / медицинский центр. Галерея / выставочный зал. Показ в любое время.
lock

Войдите или зарегистрируйтесь
для просмотра информации

Просматривайте условия сделки и всю информацию об объекте
Сохраняйте фильтры в поиске и не вводите заново
Доступ к избранному с любого устройства
Неограниченное добавление в избранное
Позвоните автору
Вам ответят на все вопросы
Остались вопросы по объявлению?
Позвоните владельцу объявления и уточните необходимую информацию.
  • Инфраструктура
  • Похожие рядом
Помощь надёжных риелторов
Риелтор партнёр Циан поможет купить или продать любую недвижимость
  • 5,0・1
  • Документы проверены
  • 10 лет 7 месяцев на Циане
  • 6 объявлений
  • 1 380 000 ₽/мес.

    Прямая аренда (от года), минимальный срок аренды 11 месяцев, доступны арендные каникулы, обеспечительный платёж 2600000 ₽, предоплата за 1 месяц

    18 137 $/мес.
    15 434 /мес.
    Цена за метр
    87 666 ₽ в год
    Налог
    НДС включен: 248 852 ₽
    Комиссия
    нет
    Коммунальные платежи
    не включены
    Эксплуатационные расходы
    включены
    РиелторИзабелла Константинова
    5,0・1
    Документы проверены