Мы используем куки-файлы. Соглашение об использовании
Площадь272,3 м²
Этаж-1 из 8
ПомещениеСвободно
КлассA
Отчёт о привлекательности объектаУзнайте, насколько помещение и район подходят для вашего бизнеса
Что входит в отчёт
  • Охват населения
  • Пешеходный трафик
  • Автомобильный трафик
  • Средний бюджет семьи по району
  • Арендные ставки рядом
  • Точки притяжения
  • Конкуренты в радиусе 1 км
  • Рекомендации по выбору места для бизнеса
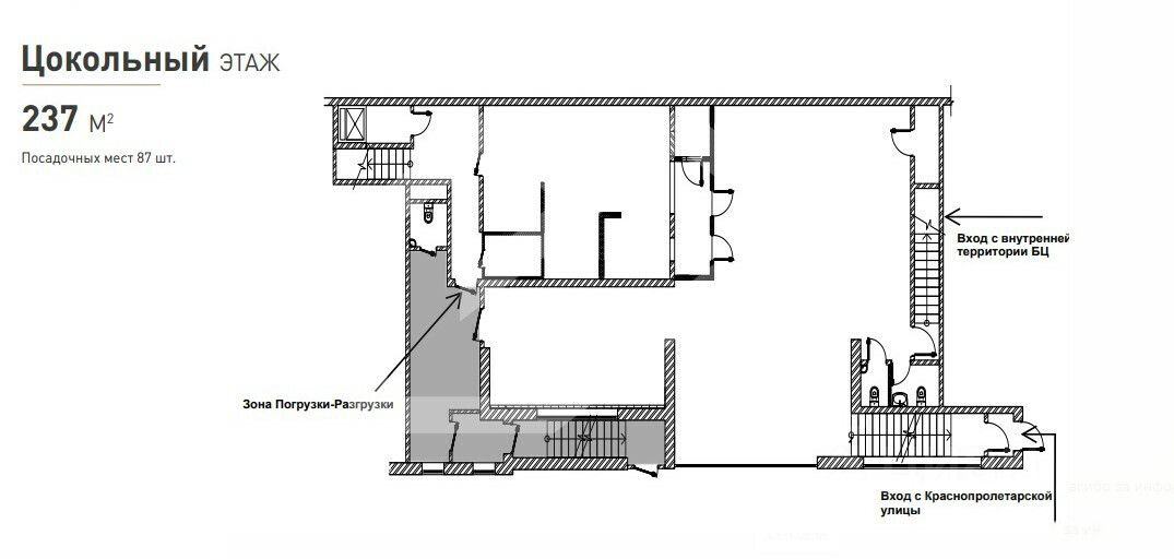
880399. Предлагаем помещение свободного назначения под бар/кафе/ресторан в бизнес-центре Эрмитаж Плаза, корпус "А", площадью 272.3 кв. м, расположенное на цокольном этаже 8-этажного здания. Преимущества объекта: -общая площадь БЦ: 43 400 м². -10 минут пешком от станции метро Маяковская; -удобный выезд на Садовое кольцо, Долгоруковскую улицу; -центр плотного жилого массива; -сложившееся торговое и деловое окружение; -сверхинтенсивный автомобильный и пешеходный трафик; -гибкая планировка, позволяющая адаптировать пространство под различные нужды; -место для вывески; -помещение с ремонтом; -вытяжка для общепита; -рядом городская парковка. Технические параметры объекта: -две отдельные входные группы: с фасада и с внутренней территории бизнес-центра -электрическая мощность: 105 кВт. -высота потолков: 3.65 м. Свяжитесь с нами для получения дополнительной информации!
lock

Войдите или зарегистрируйтесь
для просмотра информации

Просматривайте условия сделки и всю информацию об объекте
Сохраняйте фильтры в поиске и не вводите заново
Доступ к избранному с любого устройства
Неограниченное добавление в избранное
Позвоните автору
Вам ответят на все вопросы
Остались вопросы по объявлению?
Позвоните владельцу объявления и уточните необходимую информацию.
  • Инфраструктура
  • Похожие рядом
Помощь надёжных риелторов
Риелтор партнёр Циан поможет купить или продать любую недвижимость
750 000 ₽/мес.

Прямая аренда (от года)

9 861 $/мес.
8 368 /мес.
Цена за метр
33 052 ₽ в год
Налог
НДС включен: 135 245 ₽
Комиссия
нет
Коммунальные платежи
не включены
Эксплуатационные расходы
не включены
Агентство недвижимости
Документы проверены