Мы используем куки-файлы. Соглашение об использовании
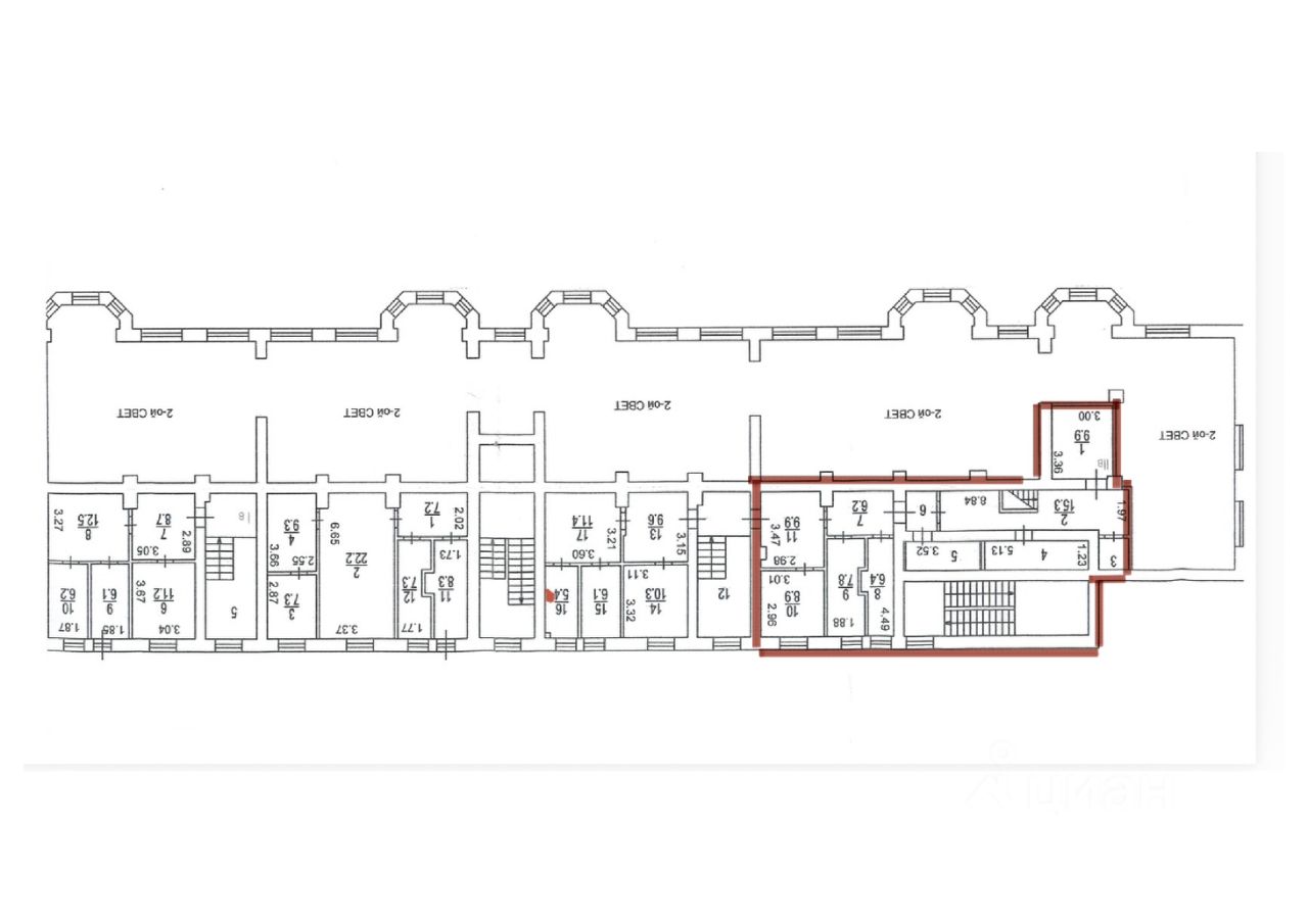
Площадь80 м²
Этаж1 из 5
ПомещениеСвободно
КлассB
Отчёт о привлекательности объектаУзнайте, насколько помещение и район подходят для вашего бизнеса
Что входит в отчёт
  • Охват населения
  • Пешеходный трафик
  • Автомобильный трафик
  • Средний бюджет семьи по району
  • Арендные ставки рядом
  • Точки притяжения
  • Конкуренты в радиусе 1 км
  • Рекомендации по выбору места для бизнеса
Сдается современное офисное помещение, отдельный офисный блок, с отдельным входом, площадью 80 м². Ключевые преимущества! Прямой договор. Арендный договор заключается напрямую с собственником помещения. Никаких надбавок к итоговой стоимости. Первая линия Саратовской улицы, в 10 минутах пешей доступности от станции метро "Текстильщики", удобная транспортная доступность (ЮВХ, ТТК, Волгоградский и Рязанский проспекты), плотный жилой массив, развитая инфраструктура района, отлично просматривается, возле офиса много бесплатных парковочных мест. Вход в офис для арендаторов свободный, для клиентов свободный. Офис представлен общим коридором, кабинет руководителя 8 м2, секретариат с ресепшн перед кабинетом 10м2 , две комнаты менеджеров по 7 м2, комната переговоров 10 м2, три склада 5м2, 3.5м2 и 1.5м2. Отдельная комната оборудованная для инкассации либо хранения оружия. Условия аренды! Арендная ставка 1740 руб./мес.. Фиксируется на весь срок аренды. Без НДС. Коммунальные услуги оплачиваются отдельно по счетчикам. Срок договора: 11 месяцев. Как организован просмотр: Показы проводятся в рабочее время с 9.00 до 18.00. Для вашего удобства оперативно организуем просмотр в удобную для вас дату. Свяжитесь с нами для получения дополнительной информации! Работаем с агентами!
lock

Войдите или зарегистрируйтесь
для просмотра информации

Просматривайте условия сделки и всю информацию об объекте
Сохраняйте фильтры в поиске и не вводите заново
Доступ к избранному с любого устройства
Неограниченное добавление в избранное
Позвоните автору
Вам ответят на все вопросы
Остались вопросы по объявлению?
Позвоните владельцу объявления и уточните необходимую информацию.
  • Инфраструктура
  • Похожие рядом
  • Общая площадь80 м²
Естественная вентиляция
Местное кондиционирование
Центральное отопление
Сигнализация
Помощь надёжных риелторов
Риелтор партнёр Циан поможет купить или продать любую недвижимость
Автор объявленияID 1196686
  • 17 лет 8 месяцев на Циане
  • 1 объявление
  • 139 200 ₽/мес.

    Прямая аренда (от года), минимальный срок аренды 11 месяцев, доступны арендные каникулы, предоплата за 1 месяц

    1 850 $/мес.
    1 575 /мес.
    Цена за метр
    20 880 ₽ в год
    Налог
    УСН
    Комиссия
    100%
    Коммунальные платежи
    не включены
    Эксплуатационные расходы
    не включены
    Автор объявленияID 1196686