Мы используем куки-файлы. Соглашение об использовании
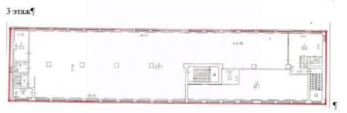
Площадь570 м²
Этаж3 из 4
Парковка25 мест
ПомещениеСвободно с мая 2026
Отчёт о привлекательности объектаУзнайте, насколько помещение и район подходят для вашего бизнеса
Что входит в отчёт
  • Охват населения
  • Пешеходный трафик
  • Автомобильный трафик
  • Средний бюджет семьи по району
  • Арендные ставки рядом
  • Точки притяжения
  • Конкуренты в радиусе 1 км
  • Рекомендации по выбору места для бизнеса
1171993. Предлагаем в аренду офисное помещение площадью 570 кв. м, расположенное в деловом центре "Дельта Порт" Преимущества объекта: - Бизнес-центр класса В+ - Шаговая доступность от станции метро Кожуховская (10 минут пешком) - Этаж: 3 - Помещение предлагается с отделкой в стиле "лофт" - Планировка смешанная - Помещение свободно с мая 2026 года - На территории есть парковка - наземная на 25 мест Эксплуатационные платежи включены в ставку, коммунальные платежи оплачиваются дополнительно. Оперативно организуем для Вас показ и ответим на все вопросы. Свяжитесь с нами для получения дополнительной информации!
lock

Войдите или зарегистрируйтесь
для просмотра информации

Просматривайте условия сделки и всю информацию об объекте
Сохраняйте фильтры в поиске и не вводите заново
Доступ к избранному с любого устройства
Неограниченное добавление в избранное
Позвоните автору
Вам ответят на все вопросы
Остались вопросы по объявлению?
Позвоните владельцу объявления и уточните необходимую информацию.
  • Инфраструктура
  • Похожие рядом
Помощь надёжных риелторов
Риелтор партнёр Циан поможет купить или продать любую недвижимость
1 282 500 ₽/мес.

Прямая аренда (от года)

17 194 $/мес.
14 613 /мес.
Цена за метр
27 000 ₽ в год
Налог
НДС включен: 231 230 ₽
Комиссия
нет
Коммунальные платежи
не включены
Эксплуатационные расходы
включены
Агентство недвижимости
Документы проверены