Мы используем куки-файлы. Соглашение об использовании
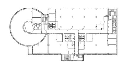
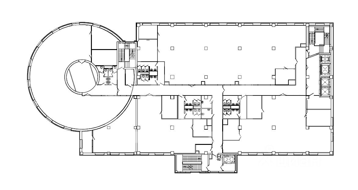
Помещение свободного назначения, 1 996 м²

Сдается помещение свободного назначения, 1 996 м²

Площадь1 996 м²
Этаж2 из 9
ПомещениеСвободно
Отчёт о привлекательности объектаУзнайте, насколько помещение и район подходят для вашего бизнеса
Что входит в отчёт
  • Охват населения
  • Пешеходный трафик
  • Автомобильный трафик
  • Средний бюджет семьи по району
  • Арендные ставки рядом
  • Точки притяжения
  • Конкуренты в радиусе 1 км
  • Рекомендации по выбору места для бизнеса
916828. Предлагаем в аренду офисное помещение площадью 1996 кв. м, расположенное в строящемся бизнес-центре "Ринг Парк" Преимущества объекта: - Бизнес-центр класса В+ с новейшим инженерным обеспечением - Шаговая доступность от станции МЦК Новохохловская (3 минуты пешком) - Этаж: 2 - Современная отделка в стиле "лофт" - Смешанная планировка - Высокие окна в пол - Высота потолков 4 м. - Ввод в эксплуатацию - 3 квартал 2026г. Эксплуатационные платежи включены в ставку, коммунальные платежи оплачиваются дополнительно. Оперативно организуем для Вас показ и ответим на все вопросы. Свяжитесь с нами для получения дополнительной информации!
lock

Войдите или зарегистрируйтесь
для просмотра информации

Просматривайте условия сделки и всю информацию об объекте
Сохраняйте фильтры в поиске и не вводите заново
Доступ к избранному с любого устройства
Неограниченное добавление в избранное
Позвоните автору
Вам ответят на все вопросы
Остались вопросы по объявлению?
Позвоните владельцу объявления и уточните необходимую информацию.
  • Инфраструктура
  • Похожие рядом

Ring Park

  • Тип зданияБизнес-центр
  • Категория зданияСтроящееся
  • Общая площадь18 792 м²
Приточная вентиляция
Центральное кондиционирование
Центральное отопление
Спринклерная система пожаротушения
Помощь надёжных риелторов
Риелтор партнёр Циан поможет купить или продать любую недвижимость
6 154 334 ₽/мес.

Прямая аренда (от года)

82 058 $/мес.
69 957 /мес.
Цена за метр
37 000 ₽ в год
Налог
НДС включен: 1 109 776 ₽
Комиссия
нет
Коммунальные платежи
не включены
Эксплуатационные расходы
включены
Агентство недвижимости
Документы проверены