Мы используем куки-файлы. Соглашение об использовании

Сдается торговая площадь (А)

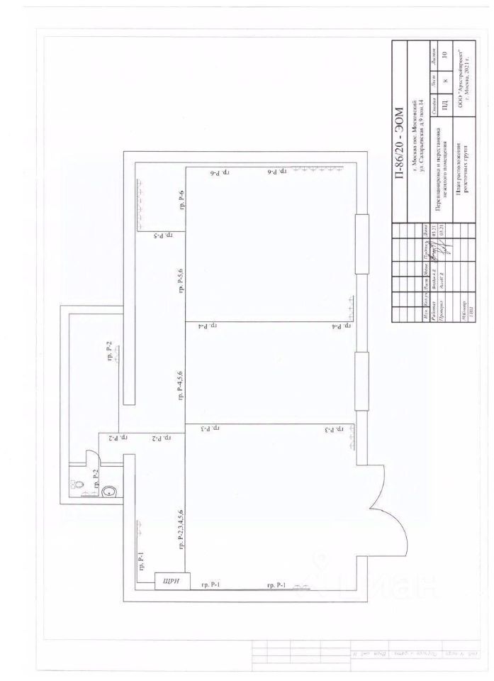
Площадь64 м²
Этаж1 из 25
ПомещениеСвободно
КлассA
Отчёт о привлекательности объектаУзнайте, насколько помещение и район подходят для вашего бизнеса
Что входит в отчёт
  • Охват населения
  • Пешеходный трафик
  • Автомобильный трафик
  • Средний бюджет семьи по району
  • Арендные ставки рядом
  • Точки притяжения
  • Конкуренты в радиусе 1 км
  • Рекомендации по выбору места для бизнеса
Объект 14514 В аренду от собственника предлагается снять коммерческое нежилое торговое помещение свободного назначения площадью 64м² по адресу: Москва, поселение Московский, улица Саларьевская, 9пом14 Ключевые преимущества: инфраструктура: мужская парикмахерская "Чёрная кость", Вкусвилл, школа, клиника, Саларьеский парк, студия лазерной эпиляции все коммуникации: ГВС, ХВС, электроэнергия, отопление соседи-арендаторы: студия эпиляции, барбершоп, медиицнская лаборатория, массажный салон, пункт выдачи Вайлдберриз две мокрые точки новый ремонт помещение подойдет под офис, магазин, кофейню, аптеку светодиодное освещение проведен интернет два кондиционера установлена сигнализация доступ 24/7 место для размещения рекламы Основные характеристики: площадь торгового помещения: 64м² этаж/этажность: 1/25 отапливаемое помещение чистовая отделка огороженная шлагбаумом территория 18 кВт электронэнергии класс здания: А ЖК "Саларьево Парк" открытая планировка прямая аренда отдельный вход высота потолков 5.7м Если у вас появились вопросы,наши ответственные будут рады Вам помочь!
lock

Войдите или зарегистрируйтесь
для просмотра информации

Просматривайте условия сделки и всю информацию об объекте
Сохраняйте фильтры в поиске и не вводите заново
Доступ к избранному с любого устройства
Неограниченное добавление в избранное
Позвоните автору
Вам ответят на все вопросы
Остались вопросы по объявлению?
Позвоните владельцу объявления и уточните необходимую информацию.
  • Инфраструктура
  • Похожие рядом

Саларьево Парк

  • Общая площадь64 м²
Помощь надёжных риелторов
Риелтор партнёр Циан поможет купить или продать любую недвижимость
150 000 ₽/мес.
2 000 $/мес.
1 705 /мес.
Цена за метр
28 125 ₽ в год
Налог
УСН
Комиссия
нет
Коммунальные платежи
не включены
Эксплуатационные расходы
не включены
Агентство недвижимости
Суперагент