Мы используем куки-файлы. Соглашение об использовании
Помещение свободного назначения, 113 м²

Сдается помещение свободного назначения, 113 м²

ПСН в самом центре Москвы

Площадь113 м²
Этаж1 из 3
ПомещениеСвободно
Отчёт о привлекательности объектаУзнайте, насколько помещение и район подходят для вашего бизнеса
Что входит в отчёт
  • Охват населения
  • Пешеходный трафик
  • Автомобильный трафик
  • Средний бюджет семьи по району
  • Арендные ставки рядом
  • Точки притяжения
  • Конкуренты в радиусе 1 км
  • Рекомендации по выбору места для бизнеса
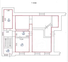
Предлагается в долгосрочную аренду помещение свободного назначения в самом сердце Москвы, на Столешниковом переулке, в тихом месте, в 8мин пешей доступности от ст.метро Пушкинская и Охотный ряд, с удобным заездом со стороны ул.Петровка. Площадь помещения 113 кв.м, цоколь с окнами над уровнем земли и первый этаж. Высота потолков 4м, отдельный вход. Центральная система водоотведения и отопления, ХВС и ГВС, автономная вентиляция, система кондиционирования и ОПС, дом газифицирован, электрическая мощность 40кВт.
lock

Войдите или зарегистрируйтесь
для просмотра информации

Просматривайте условия сделки и всю информацию об объекте
Сохраняйте фильтры в поиске и не вводите заново
Доступ к избранному с любого устройства
Неограниченное добавление в избранное
Позвоните автору
Вам ответят на все вопросы
Остались вопросы по объявлению?
Позвоните владельцу объявления и уточните необходимую информацию.
  • Инфраструктура
  • Похожие рядом
  • Общая площадь113 м²
Приточная вентиляция
Местное кондиционирование
Центральное отопление
Сигнализация
Помощь надёжных риелторов
Риелтор партнёр Циан поможет купить или продать любую недвижимость
Автор объявления
ID 86606057
  • 4 года 2 месяца на Циане
  • 570 000 ₽/мес.

    Прямая аренда (от года), минимальный срок аренды 11 месяцев, обеспечительный платёж 570000 ₽, предоплата за 1 месяц

    7 547 $/мес.
    6 457 /мес.
    Цена за метр
    60 531 ₽ в год
    Налог
    УСН
    Комиссия
    нет
    Коммунальные платежи
    не включены
    Эксплуатационные расходы
    не включены
    Автор объявления
    ID 86606057