Мы используем куки-файлы. Соглашение об использовании
Помещение свободного назначения, 303,7 м²

Сдается помещение свободного назначения, 303,7 м²

Площадь303,7 м²
Этаж1 из 5
Отчёт о привлекательности объектаУзнайте, насколько помещение и район подходят для вашего бизнеса
Что входит в отчёт
  • Охват населения
  • Пешеходный трафик
  • Автомобильный трафик
  • Средний бюджет семьи по району
  • Арендные ставки рядом
  • Точки притяжения
  • Конкуренты в радиусе 1 км
  • Рекомендации по выбору места для бизнеса
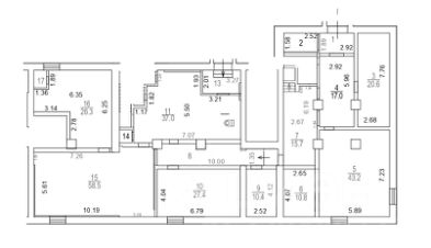
Сдается в аренду нежилое помещение площадью 303,7 кв.м по адресу: г. Москва, ул. Металлургов, д. 7/18 (район Перово). Помещение расположено в подвальном этаже и имеет кабинетную планировку, что позволяет использовать его как склад, офис или комбинированный формат. Основные характеристики: площадь — 303,7 кв.м кабинетная система (офис + склад) высота потолков — около 2,5 м отдельные помещения под склад, кабинеты, подсобные зоны электрощитовая Подойдет для: склада / хранения интернет-магазина офиса компании архива мастерской Преимущества: доступная цена аренды крупная площадь гибкое использование расположение в Москве развитая инфраструктура района Помещение требует учета особенностей планировки и перепланировки (обсуждается индивидуально). Звоните — расскажу подробнее и организую просмотр!
lock

Войдите или зарегистрируйтесь
для просмотра информации

Просматривайте условия сделки и всю информацию об объекте
Сохраняйте фильтры в поиске и не вводите заново
Доступ к избранному с любого устройства
Неограниченное добавление в избранное
Позвоните автору
Вам ответят на все вопросы
Остались вопросы по объявлению?
Позвоните владельцу объявления и уточните необходимую информацию.
  • Инфраструктура
  • Похожие рядом
  • Общая площадь303,7 м²
Помощь надёжных риелторов
Риелтор партнёр Циан поможет купить или продать любую недвижимость
Управляющая компанияID 91508338
  • Документы проверены
  • 3 года 11 месяцев на Циане
  • 9 объявлений
  • 303 000 ₽/мес.

    Прямая аренда (от года), предоплата за 1 месяц

    4 046 $/мес.
    3 452 /мес.
    Цена за метр
    11 973 ₽ в год
    Налог
    УСН
    Комиссия
    нет
    Коммунальные платежи
    не включены
    Эксплуатационные расходы
    не включены
    Управляющая компанияID 91508338
    Документы проверены