Мы используем куки-файлы. Соглашение об использовании
Площадь2 708 м²
Этаж4 из 5
Парковка439 мест
КлассB+
Отчёт о привлекательности объектаУзнайте, насколько помещение и район подходят для вашего бизнеса
Что входит в отчёт
  • Охват населения
  • Пешеходный трафик
  • Автомобильный трафик
  • Средний бюджет семьи по району
  • Арендные ставки рядом
  • Точки притяжения
  • Конкуренты в радиусе 1 км
  • Рекомендации по выбору места для бизнеса
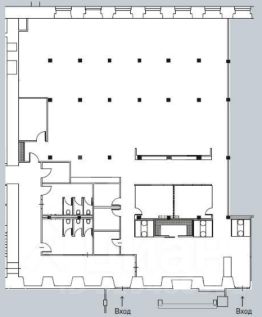
Предлагаем в аренду офис на 226 - 601 сотрудников в бизнес-парке "Даниловская Мануфактура. КНОП и Батистовый". Разработаем планировку под вашу команду бесплатно с неограниченными правками. Площадь: 2 708 м². Состояние: готов к въезду. Арендная плата: 8 998 993 руб./мес. Ставка: 39 877 руб./м²/год (включая эксплуатацию). Налогообложение: включая НДС. Коммунальные расходы: оплачиваются по факту. Тип аренды: Прямая аренда. Этаж: 1, 3, 4 из 5. Помещение с функциональной смешанной планировкой. Нагрузка на перекрытия 400 кг/кв.м. Вентиляция: приточно-вытяжная. Кондиционирование: центральное. Охрана: круглосуточная охрана здания. Пожарная сигнализация: датчики пожаротушения. Бизнес-центр Даниловская мануфактура класса B+ расположен рядом с метро Тульская. Удобный выезд на: Варшавское шоссе, ТТК. Инфраструктура здания: Наземная парковка на 500 мест, торговые аппараты с кофе и закусками, рестораны и кафе, магазины. В пешей доступности: Детский парк. Юридические адреса обслуживаются в налоговой 26. Звоните или пишите в чат - организуем просмотр в день обращения и направим презентацию по объекту. Этот лот состоит из нескольких помещений: 744 кв. м., 965 кв. м., 278 кв. м. и 721 кв. м. Бесплатно разработаем планировку под вашу команду, рассчитаем оптимальную рассадку и зонирование. *Количество рабочих мест рассчитано автоматически: от 4,5 до 12 м² на человека. ID объекта: 042937
lock

Войдите или зарегистрируйтесь
для просмотра информации

Просматривайте условия сделки и всю информацию об объекте
Сохраняйте фильтры в поиске и не вводите заново
Доступ к избранному с любого устройства
Неограниченное добавление в избранное
Позвоните автору
Вам ответят на все вопросы
Остались вопросы по объявлению?
Позвоните владельцу объявления и уточните необходимую информацию.
  • Инфраструктура
  • Похожие рядом
Помощь надёжных риелторов
Риелтор партнёр Циан поможет купить или продать любую недвижимость
8 998 993 ₽/мес.

Прямая аренда (от года)

120 294 $/мес.
102 398 /мес.
Цена за метр
39 878 ₽ в год
Налог
НДС включен: 1 622 769 ₽
Комиссия
нет
Коммунальные платежи
не включены
Эксплуатационные расходы
не включены
Агентство недвижимости
Документы проверены
На Циан
15 лет
Объектов в работе
более 5000