Мы используем куки-файлы. Соглашение об использовании
Помещение свободного назначения, 66 м²

Сдается помещение свободного назначения, 66 м²

    Площадь66 м²
    Этаж1 из 15
    Отчёт о привлекательности объектаУзнайте, насколько помещение и район подходят для вашего бизнеса
    Что входит в отчёт
    • Охват населения
    • Пешеходный трафик
    • Автомобильный трафик
    • Средний бюджет семьи по району
    • Арендные ставки рядом
    • Точки притяжения
    • Конкуренты в радиусе 1 км
    • Рекомендации по выбору места для бизнеса
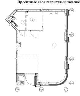
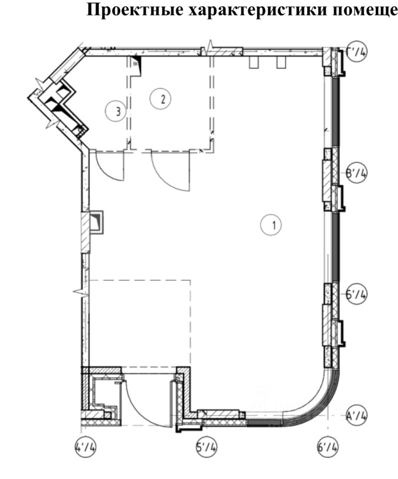
    925820. Предлагаем помещение свободного назначения, площадью 66 кв. м., расположенное на первом этаже жилого дома в ЖК "Shagal". Корпус 4. Без комиссии для арендатора. Преимущества объекта: -первая линия набережной Марка Шагала; -ЖК состоит из 27 корпусов переменной этажности (от 6 до 28 этажей), рассчитан на 4 530 квартир; -пешая доступность от станции метро Технопарк (25 минут пешком); -3 км до ТТК и 2.5 км до проспекта генерала Дорохова; -интенсивный пешеходный и автомобильный трафик, плотный жилой массив в окружении; -объект отлично просматривается, находится в легком доступе для потенциальных клиентов; -просторное и функциональное - это помещение подходит для различных видов бизнеса: от магазина до офиса; -зальная планировка; -витринное остекление; -место для вывески; -подземная парковка и рядом остановка общественного транспорта. Технические параметры объекта: -отдельный вход с фасада; -электрическая мощность: 15 кВт; -высота потолков: 6 м. Ввод в эксплуатацию: 4 квартал 2025 г. Свяжитесь с нами для получения дополнительной информации!
    lock

    Войдите или зарегистрируйтесь
    для просмотра информации

    Просматривайте условия сделки и всю информацию об объекте
    Сохраняйте фильтры в поиске и не вводите заново
    Доступ к избранному с любого устройства
    Неограниченное добавление в избранное
    Позвоните автору
    Вам ответят на все вопросы
    Остались вопросы по объявлению?
    Позвоните владельцу объявления и уточните необходимую информацию.
    • Инфраструктура
    • Похожие рядом
    • ДевелоперГруппа Эталон
    • Тип зданияЖилой комплекс
    • Общая площадь66 м²
    Помощь надёжных риелторов
    Риелтор партнёр Циан поможет купить или продать любую недвижимость
    330 000 ₽/мес.

    Прямая аренда (от года)

    4 407 $/мес.
    3 760 /мес.
    Цена за метр
    60 000 ₽ в год
    Налог
    УСН
    Комиссия
    нет
    Коммунальные платежи
    не включены
    Эксплуатационные расходы
    не включены
    Агентство недвижимости
    Документы проверены