Мы используем куки-файлы. Соглашение об использовании
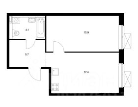
Общая площадь43,1 м²
Площадь кухни17,4 м²
Этаж9 из 33
Год постройки2023
Объявление снято с публикации, поищите ещё что-нибудь

О квартире

Общая площадь

43,1 м²

Площадь кухни

17,4 м²

Ремонт

Евроремонт

О доме

Год постройки

2023

Тип перекрытий

Нет информации

Подъезды

2

Отопление

Нет информации

Аварийность

Нет

В квартире есть

Холодильник
Стиральная машина
Кондиционер
Телевизор
Интернет
Ванна
Мебель на кухне
Мебель в комнатах
75 000 ₽/мес.
Оплата ЖКХ
включена (счётчики включены)
Залог
75 000 ₽
Комиссия
50%
Предоплата
1 месяц
Срок аренды
от года
Автор объявленияКонстантин Кротов
Суперагент