Мы используем куки-файлы. Соглашение об использовании

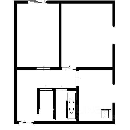
Сдается 2-комн. квартира, 38 м²

Общая площадь38 м²
Жилая площадь21 м²
Площадь кухни5,5 м²
Этаж1 из 9
Год постройки1971
Объявление снято с публикации, поищите ещё что-нибудь

О квартире

Общая площадь

38 м²

Жилая площадь

21 м²

Площадь кухни

5,5 м²

Высота потолков

2,64 м

Планировка

Изолированная

Санузел

1 совмещенный

Ремонт

Косметический

О доме

Год постройки

1971

Строительная серия

II-29

Количество лифтов

1 пассажирский

Тип дома

Кирпичный

Тип перекрытий

Железобетонные

Подъезды

10

О подъезде

Есть мусоропровод

Парковка

Наземная

Отопление

Центральное

Аварийность

Нет

Газоснабжение

Центральное

В квартире есть

Холодильник
Стиральная машина
Телевизор
Интернет
Ванна
Мебель на кухне
Мебель в комнатах
48 000 ₽/мес.
Оплата ЖКХ
включена (без счётчиков)
Залог
48 000 ₽
Комиссия
60%
Предоплата
1 месяц
Срок аренды
от года
Условия проживания
можно с детьми и животными
Автор объявленияМаксим Веселов
Суперагент