Мы используем куки-файлы. Соглашение об использовании
Общая площадь48 м²
Жилая площадь30 м²
Площадь кухни12 м²
Этаж22 из 22
Год постройки2020
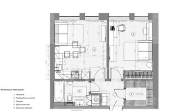
Сдаётся впервые 2х комнатная квартира с дизайнерским ремонтом общей площадью 48 м2 в ЖК "Хорошевский" на 22-м этаже. Зона прихожей с зеркалами, установлен кондиционер, далее большая гардеробная комната для ваших вещей. Ванная комната с постирочная зоной, стиральная машина LG с функцией сушки, встроенный шкаф для хранения, тёплый пол, установлен бойлер- в квартире всегда будет горячая вода. Просторная кухня-гостиная, в зоне кухни большое пространство для ваших кулинарных шедевров, вся техника встроена, посудомоечная машина, духовой шкаф, микроволновая печь, индукционная панель с вытяжкой и холодильник, установлены фильтры для питьевой воды, для кофеманов- кофемашина Jura Зона гостиной с уютным диваном, напротив которого телевизор Samsung В спальне раскладной небольшой диван (готовы обсудить покупку кровати), телевизор, рабочее место и встроенной большой шкаф. Закрытая территория комплекса, 3 больших двора, двор без машин. На территории есть все необходимое, магазины, студии, фитнес клуб с бассейном, кафе, аптеки и многое другое. Предусмотрено машиноместо в подземном паркинге за дополнительную плату.
Позвоните автору
Вам ответят на все вопросы

О квартире

Общая площадь

48 м²

Жилая площадь

30 м²

Площадь кухни

12 м²

Высота потолков

2,8 м

Санузел

1 совмещенный

Ремонт

Дизайнерский

О доме

Год постройки

2020

Количество лифтов

2 пассажирских, 2 грузовых

Тип дома

Кирпичный

Тип перекрытий

Железобетонные

Подъезды

3

Придомовая территория

Шлагбаум, двор без машин

Парковка

Подземная

Отопление

Центральное

Аварийность

Нет

В квартире есть

Холодильник
Посудомоечная машина
Стиральная машина
Кондиционер
Телевизор
Интернет
Ванна
Мебель на кухне
Мебель в комнатах
Спросите умного помощника
Получите экспертное мнение о жилье

Расположение

Платёж такой же, а квартира — вашаНовые квартиры с отделкой под ваш бюджет
Автор объявления
ID 62448870
  • Документы проверены
  • 5 лет 5 месяцев на Циане
  • 125 000 ₽/мес.
    Оплата ЖКХ
    включена (без счётчиков)
    Залог
    125 000 ₽
    Комиссия
    50%
    Предоплата
    1 месяц
    Срок аренды
    от года
    Автор объявления
    ID 62448870
    Документы проверены