Мы используем куки-файлы. Соглашение об использовании
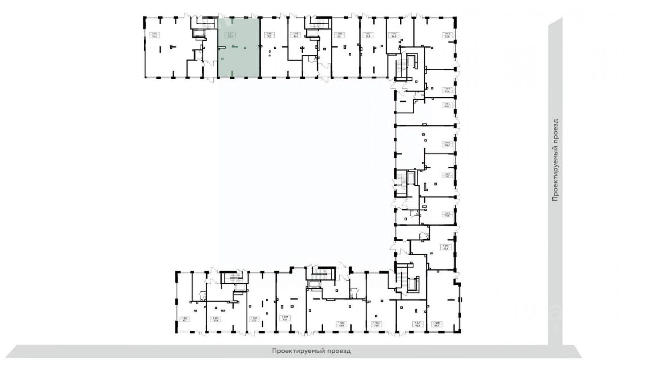
Помещение свободного назначения, 128,3 м²
Площадь128,3 м²
Этаж1 из 9
ПомещениеСвободно
Отчёт о привлекательности объектаУзнайте, насколько помещение и район подходят для вашего бизнеса
Что входит в отчёт
  • Охват населения
  • Пешеходный трафик
  • Автомобильный трафик
  • Средний бюджет семьи по району
  • Арендные ставки рядом
  • Точки притяжения
  • Конкуренты в радиусе 1 км
  • Рекомендации по выбору места для бизнеса
Лот 641202 Предложение от Собственника! Делимся комиссией с коллегами! Продается коммерческое помещение площадью 128,3 кв. м, расположенное на первом этаже жилого дома в ЖК "Родные кварталы". Объект обладает свободной планировкой, выделенной мощностью 38,5 кВт, подключенной канализацией и не требует ремонта. Помещение подходит для различных видов деятельности, включая медицинские центры, салоны красоты, офисы, рестораны, банки, магазины и другие коммерческие предприятия. Основные характеристики помещения: площадь 128,3 кв. м, высота потолков 5,22 м, разрешенная мощность 38,49 кВт. Вентиляционная система представлена каналами размером 250х200, 500х350 и 125. Помещение имеет два входа, расположено на одном этаже и не оборудовано витринным остеклением. Прогнозируемая проходимость составляет от 59 до 138 человек в час. Срок сдачи объекта запланирован на IV квартал 2026 года. Приобретая данное помещение, покупатели могут воспользоваться интерактивным подбором или рассмотреть варианты с акцептом франшизы. Чтобы получить ПОДРОБНУЮ ПРЕЗЕНТАЦИЮ С ПЛАНИРОВКОЙ И ФОТОГРАФИЯМИ, звоните или отправьте свой email и номер телефона в сообщении на портале. Высылаем в течение 15 минут по запросу! Уважаемые коллеги, мы работаем по этому объекту с посредниками и делимся комиссией в соответствии с нашей партнерской программой! Конт. лицо: НОВОСТРОЙКИ, доб. 211, ЛОТ 641202
lock

Войдите или зарегистрируйтесь
для просмотра информации

Просматривайте условия сделки и всю информацию об объекте
Сохраняйте фильтры в поиске и не вводите заново
Доступ к избранному с любого устройства
Неограниченное добавление в избранное
Позвоните автору
Вам ответят на все вопросы
Остались вопросы по объявлению?
Позвоните владельцу объявления и уточните необходимую информацию.
  • Инфраструктура
  • Похожие рядом
  • Тип зданияЖилой дом
  • Общая площадь128,3 м²
Помощь надёжных риелторов
Риелтор партнёр Циан поможет купить или продать любую недвижимость
36 330 711 ₽
482 884 $
411 089
Цена за метр
283 170 ₽
Налог
НДС включен: 6 551 439 ₽
Агентство недвижимости
Суперагент
На Циан
17 лет
Объектов в работе
более 5000