Мы используем куки-файлы. Соглашение об использовании
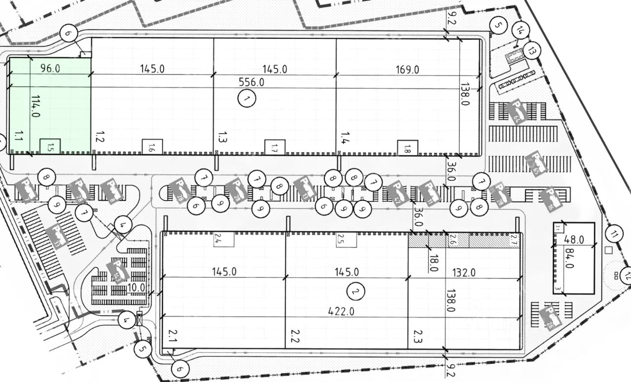
Площадь17 000 м²
Этаж1 из 1
Сетка колонн12x24
Выс. потолков12.9 м.
ПомещениеСвободно
Отчёт о привлекательности объектаУзнайте, насколько помещение и район подходят для вашего бизнеса
Что входит в отчёт
  • Охват населения
  • Пешеходный трафик
  • Автомобильный трафик
  • Средний бюджет семьи по району
  • Арендные ставки рядом
  • Точки притяжения
  • Конкуренты в радиусе 1 км
  • Рекомендации по выбору места для бизнеса
Складское помещение 17 000 кв. м в "Ориентир Запад". Прямая продажа, без комиссии. Направление: Запад. Шоссе: Новорижское. Расстояние от МКАД: 40 км. Характеристики: - Класс: A; - Ворота: Доки, Ворота; - Тип склада: Сухой склад; - Высота потолков: 12.9 м; - Нагрузка на пол: 9 т/ кв.м; - Система пожаротушения: Спринклерная; - Тип пола: С антипылевым покрытием; - Пожарная сигнализация: Да; - Уровень пола: 1.2 м; - Шаг колонн: 12x24 м. Стоимость: 2 040 000 000 руб. Оформление сделки напрямую от собственника, без комиссии. Готовы оперативно организовать просмотр в удобное время, предоставить PDF-презентацию и план. Точное местоположение объекта можно найти по данным координатам: 55.837580,36.877660 ID = c_1184090
lock

Войдите или зарегистрируйтесь
для просмотра информации

Просматривайте условия сделки и всю информацию об объекте
Сохраняйте фильтры в поиске и не вводите заново
Доступ к избранному с любого устройства
Неограниченное добавление в избранное
Позвоните автору
Вам ответят на все вопросы
Остались вопросы по объявлению?
Позвоните владельцу объявления и уточните необходимую информацию.
  • Инфраструктура
  • Похожие рядом
Помощь надёжных риелторов
Риелтор партнёр Циан поможет купить или продать любую недвижимость
2 040 000 000 ₽
26 811 731 $
22 815 909
Цена за метр
120 000 ₽
Налог
НДС включен: 367 868 852 ₽
Агентство недвижимости
На Циан
12 лет
Объектов в работе
более 1000