Мы используем куки-файлы. Соглашение об использовании

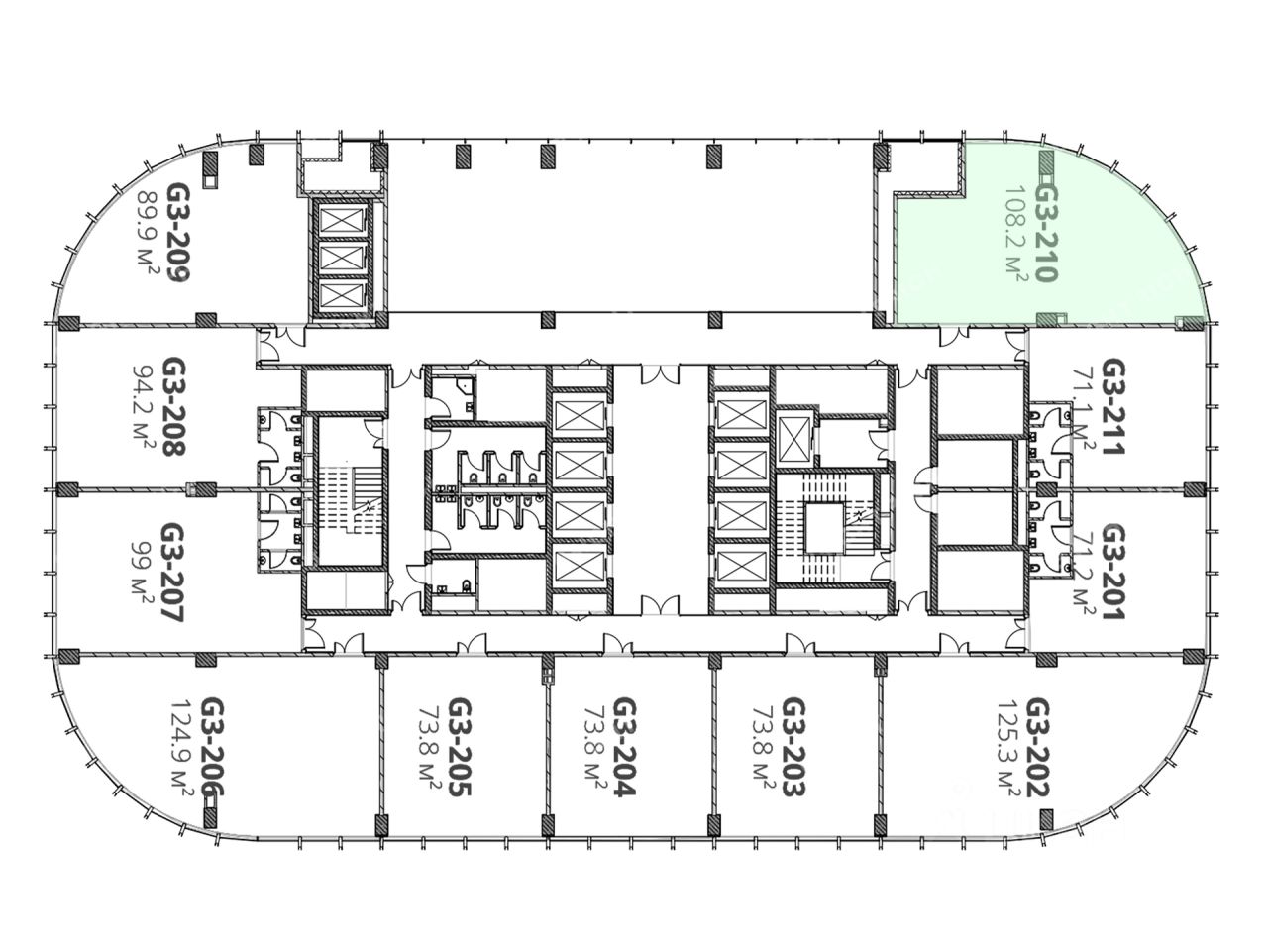
Продается офис, 108,2 м²

Площадь108,2 м²
Этаж2 из 19
Отчёт о привлекательности объектаУзнайте, насколько помещение и район подходят для вашего бизнеса
Что входит в отчёт
  • Охват населения
  • Пешеходный трафик
  • Автомобильный трафик
  • Средний бюджет семьи по району
  • Арендные ставки рядом
  • Точки притяжения
  • Конкуренты в радиусе 1 км
  • Рекомендации по выбору места для бизнеса
Офисное помещение 108.2 кв. м в бизнес-центре "STONE Ходынка 2 G3". Прямая продажа, без комиссии. Объект на стадии активного строительства, готовность ко въезду уточняется по запросу. Округ: Северный (САО). Район: Хорошевский. Характеристики: - Класс: A; - Разрешение на строительство: Да; - Арендопригодная площадь: 21700; - Наличие лифта: Есть. Стоимость: 59 942 800 руб. Финансовые условия: - В стоимость включено: НДС; - Налог: Включая НДС. Оформление сделки напрямую от собственника, без комиссии. Готовы оперативно организовать просмотр в удобное время, предоставить PDF-презентацию и план. Точное местоположение объекта можно найти по данным координатам: 55.789182,37.525199 ID = c_1770627
lock

Войдите или зарегистрируйтесь
для просмотра информации

Просматривайте условия сделки и всю информацию об объекте
Сохраняйте фильтры в поиске и не вводите заново
Доступ к избранному с любого устройства
Неограниченное добавление в избранное
Позвоните автору
Вам ответят на все вопросы
Остались вопросы по объявлению?
Позвоните владельцу объявления и уточните необходимую информацию.
  • Инфраструктура
  • Похожие рядом
  • Год постройки2028
  • Тип зданияБизнес-центр
  • Категория зданияСтроящееся
  • Общая площадь31 000 м²
Приточная вентиляция
Центральное кондиционирование
Помощь надёжных риелторов
Риелтор партнёр Циан поможет купить или продать любую недвижимость
РиелторBright Rich Moscow
Суперагент
59 942 800 ₽
839 871 $
716 255
Цена за метр
554 000 ₽
Налог
НДС включен: 10 809 357 ₽
Агентство недвижимости
На Циан
12 лет
Объектов в работе
более 1000
Риелтор
Суперагент