Мы используем куки-файлы. Соглашение об использовании
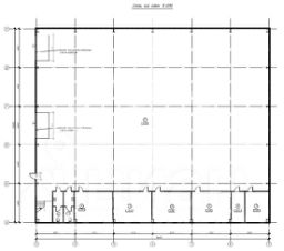
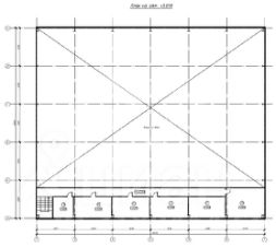
Площадь1 045,3 м²
Этаж1 из 1
Сетка колонн9*3
Выс. потолков8.0 м.
Отчёт о привлекательности объектаУзнайте, насколько помещение и район подходят для вашего бизнеса
Что входит в отчёт
  • Охват населения
  • Пешеходный трафик
  • Автомобильный трафик
  • Средний бюджет семьи по району
  • Арендные ставки рядом
  • Точки притяжения
  • Конкуренты в радиусе 1 км
  • Рекомендации по выбору места для бизнеса
883923. Новое складское помещение класса "В" на первой линии Фряновского шоссе. Удобный подъезд для большегрузного автотранспорта, 29 км от МКАД. Развитая инфраструктура. 1 этаж. Ворота - 2 шт. на уровне "0". Открытая планировка + офисный блок. Полы - антипыль. Полностью оборудован всем необходимым для эксплуатации. Водоснабжение - скважина, канализация - септик. Земельный участок в собственности. Категория - земли промышленности, ВРИ - склады. В шаговой доступности остановка общественного транспорта. Технические характеристики: Общая площадь - 1045,3 кв.м., в т.ч. офисный блок на мезонине - 100 кв.м. Высота потолка - 8 метров до ферм, 10 в коньке. Сетка колонн - 9*3 метра. Электрическая мощность - 50 кВт., с возможностью увеличения. Земельный участок 22 сотки.
lock

Войдите или зарегистрируйтесь
для просмотра информации

Просматривайте условия сделки и всю информацию об объекте
Сохраняйте фильтры в поиске и не вводите заново
Доступ к избранному с любого устройства
Неограниченное добавление в избранное
Позвоните автору
Вам ответят на все вопросы
Остались вопросы по объявлению?
Позвоните владельцу объявления и уточните необходимую информацию.
  • Инфраструктура
  • Похожие рядом
  • Год постройки2025
  • Тип зданияСклад
  • Общая площадь1 045,3 м²
Помощь надёжных риелторов
Риелтор партнёр Циан поможет купить или продать любую недвижимость
95 000 000 ₽
1 337 607 $
1 149 608
Цена за метр
90 884 ₽
Налог
УСН
Агентство недвижимости
Документы проверены