Мы используем куки-файлы. Соглашение об использовании

Продается арендный бизнес, 144,9 м²

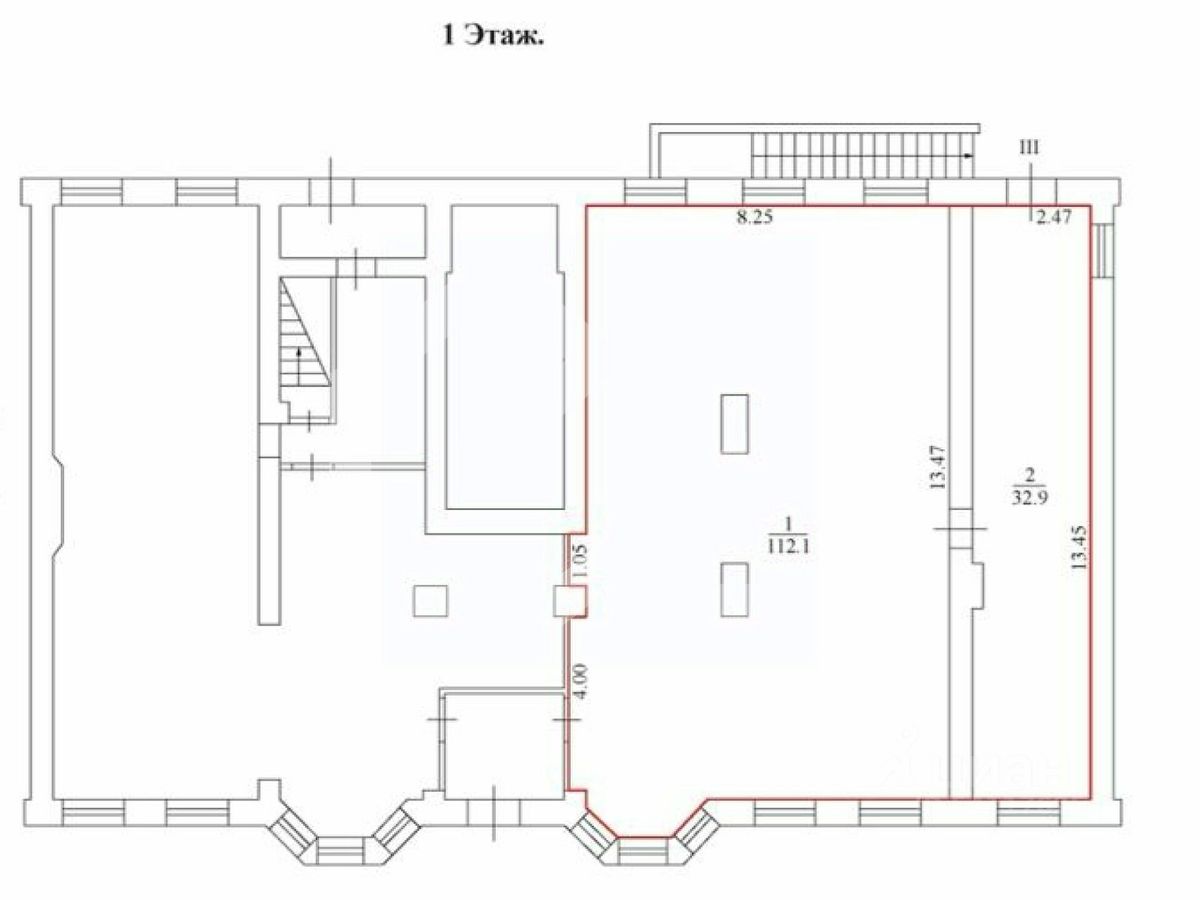
Площадь144,9 м²
Этаж1
Прибыль600 000 ₽/мес.
КатегорияТорговая площадь, свободное назначение, стрит ритейл и еще 1 категория...
Отчёт о привлекательности объектаУзнайте, насколько помещение и район подходят для вашего бизнеса
Что входит в отчёт
  • Охват населения
  • Пешеходный трафик
  • Автомобильный трафик
  • Средний бюджет семьи по району
  • Арендные ставки рядом
  • Точки притяжения
  • Конкуренты в радиусе 1 км
  • Рекомендации по выбору места для бизнеса
972293. Предлагаем помещение свободного назначения с арендатором Магазин, площадью 144.9 кв. м, расположенное на первом этаже 4-этажного жилого дома. Без комиссии для покупателя. Преимущества объекта: -первая линия ул. Сходненская; -шаговая доступность от станции метро "Сходненская" (5 минут пешком); -удобная транспортная доступность: 3.2 км до Волоколамского шоссе, 4.2 км до МКАД, 5.2 км до Путилковского шоссе, 6 км до Новокуркинского шоссе; -плотный жилой массив; -развитая инфраструктура района; -высокий автомобильный и пешеходный трафик; -отлично просматривается, находится в легком доступе для потенциальных клиентов; -гибкая планировка, позволяющая адаптировать пространство под различные нужды; -витринное остекление; -возможность размещения вывески; -стихийная парковка вдоль здания; -рядом остановка общественного транспорта; -коммунальные платежи оплачиваются отдельно. Технические параметры объекта: -отдельный вход с фасада и со двора. -электрическая мощность: 70 кВт. -высота потолков: 3.2 м. Информация об арендаторе: -арендатор: Магазин, ДДА. -прибыль: 600 000 руб/мес. Свяжитесь с нами для получения дополнительной информации!
lock

Войдите или зарегистрируйтесь
для просмотра информации

Просматривайте условия сделки и всю информацию об объекте
Сохраняйте фильтры в поиске и не вводите заново
Доступ к избранному с любого устройства
Неограниченное добавление в избранное
Позвоните автору
Вам ответят на все вопросы
Остались вопросы по объявлению?
Позвоните владельцу объявления и уточните необходимую информацию.
  • Инфраструктура
  • Похожие рядом
Помощь надёжных риелторов
Риелтор партнёр Циан поможет купить или продать любую недвижимость
66 000 000 ₽
924 739 $
788 633
Цена за метр
455 487 ₽
Налог
УСН
Агентство недвижимости
Документы проверены